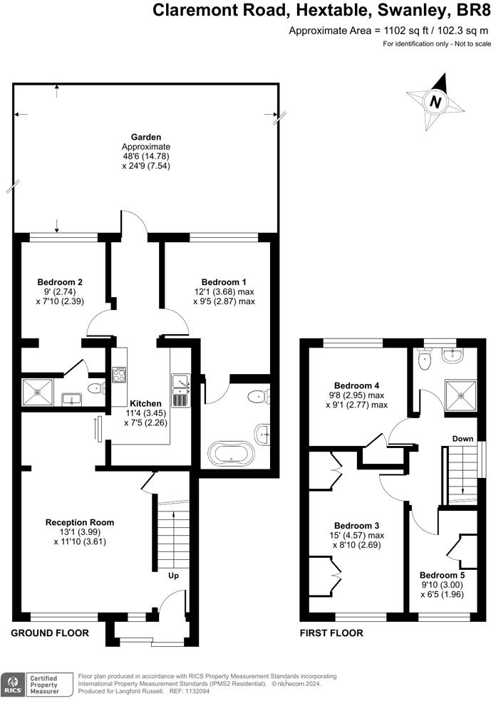
**Standout Features:**
- Spacious five-bedroom, semi-detached family home
- Three bathrooms, including en-suite options
- Off-street parking for two to three vehicles and a garage
- Modern kitchen with granite countertops and built-in appliances
- Generous backyard garden with lawn and patio space
- Excellent public transport links, including nearby Swanley mainline station
- Close proximity to reputable schools and local amenities
**Summary:**
Discover your family's new haven in this rarely available five-bedroom semi-detached home in the sought-after Hextable village. Perfectly positioned in a quiet residential area, this property boasts a spacious lounge/diner ideal for family gatherings, a contemporary kitchen with chic finishes, and a delightful rear garden to unwind or entertain in. With two en-suite bathrooms and an additional shower room, practicality meets comfort in this thoughtfully designed layout.
Located within a short walk of Swanley mainline station, commuting to central London takes just about twenty minutes, perfect for professionals. Families will appreciate the proximity to highly regarded schools such as Hextable Primary and Wilmington Grammar, surrounded by parks and local conveniences.
While it offers a cozy, well-maintained living space, there’s also potential for modernization to cater to your personal style. With low crime rates and fast broadband, this property ticks all the boxes for a family-oriented lifestyle in a comfortable suburb. Don’t miss out on the chance to secure this spacious haven—arrange your viewing today!
5 bedroom house for sale in New Road, Hextable, BR8 — £575,000 • 5 bed • 2 bath • 829 ft²
4 bedroom semi-detached house for sale in Claremont Road, Hextable, Swanley, BR8 — £500,000 • 4 bed • 2 bath • 1109 ft²
5 bedroom detached house for sale in Top Dartford Road, Hextable, Swanley, BR8 — £825,000 • 5 bed • 3 bath • 2307 ft²
3 bedroom terraced house for sale in Claremont Road, Hextable, Swanley, BR8 — £375,000 • 3 bed • 1 bath • 758 ft²
4 bedroom detached house for sale in College Road, Hextable, Kent, BR8 — £675,000 • 4 bed • 2 bath • 1265 ft²
4 bedroom link detached house for sale in Top Dartford Road, Hextable, Swanley, Kent, BR8 — £800,000 • 4 bed • 3 bath • 2044 ft²


























































































