**Standout Features:**
- Newly renovated, modern end-of-terrace home
- Bright and welcoming lounge with contemporary design
- Stylish kitchen with ample storage
- Spacious conservatory currently used as a dining room
- Generous wrap-around garden with lawn, patio, and decking
- Allocated off-street parking and external storage shed
- Chain-free with affordable council tax
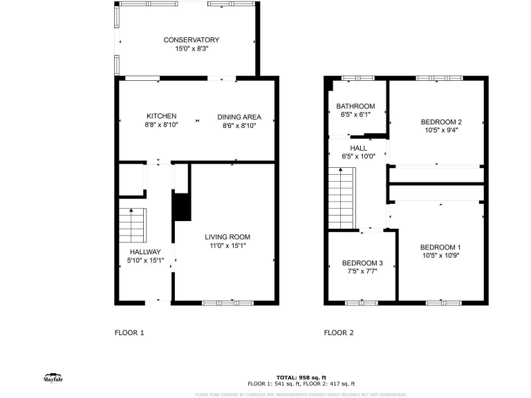
Nestled in the desirable Stone Cross Road area of Crowborough, this beautifully presented three-bedroom end-of-terrace home is ideal for families, first-time buyers, or those looking to downsize. The modern and inviting layout features a bright lounge that leads to a stylish kitchen and a spacious conservatory, perfect for dining or family gatherings. Upstairs, two generous double bedrooms plus a single bedroom provide ample space for family or guests.
The wrap-around garden stands out as a highlight, featuring a blend of lawn, patio, and decking spaces, perfect for summer barbecues or quiet evenings outdoors. An external brick-built shed adds valuable storage or workspace options. With parking provided and a high standard finish throughout, this home is ready for you to move in and enjoy.
Recent renovation ensures a cozy and modern living experience, while the property’s location benefits from excellent local schools and amenities. Quick action is encouraged—this opportunity won’t last long!
3 bedroom semi-detached house for sale in Bailey Place, Crowborough, TN6 1FN, TN6 — £425,000 • 3 bed • 2 bath • 1166 ft²
3 bedroom terraced house for sale in Medway, Crowborough, TN6 — £350,000 • 3 bed • 1 bath • 885 ft²
3 bedroom semi-detached house for sale in Rochester Way, Crowborough, East Sussex, TN6 — £385,000 • 3 bed • 1 bath • 1023 ft²
3 bedroom end of terrace house for sale in Sandridge, Crowborough, TN6 — £395,000 • 3 bed • 1 bath • 846 ft²
3 bedroom detached house for sale in Sefton Chase, Crowborough, TN6 — £495,000 • 3 bed • 1 bath • 1262 ft²
3 bedroom detached house for sale in Eridge Drive, Crowborough, TN6 — £425,000 • 3 bed • 1 bath • 1038 ft²






























































