CM4 9DU - 4 bedroom end of terrace house for sale in High Street, Ing…

View on Property Piper

4 bedroom end of terrace house for sale in High Street, Ingatestone, CM4

Summary - Flat 5, Stocks Bar, High Street, INGATESTONE CM4 9DU

4 bed 2 bath End of Terrace

Grade II listed Georgian period home with strong historic features
An iconic Grade II listed Georgian residence positioned on Ingatestone High Street, directly beside St. Edmund & St. Mary Church. The house delivers rare period detail — tall sash windows with rising internal shutters, carved keystones, a bricked-in ‘blind window’ and other historic features that will appeal to buyers who value heritage character.

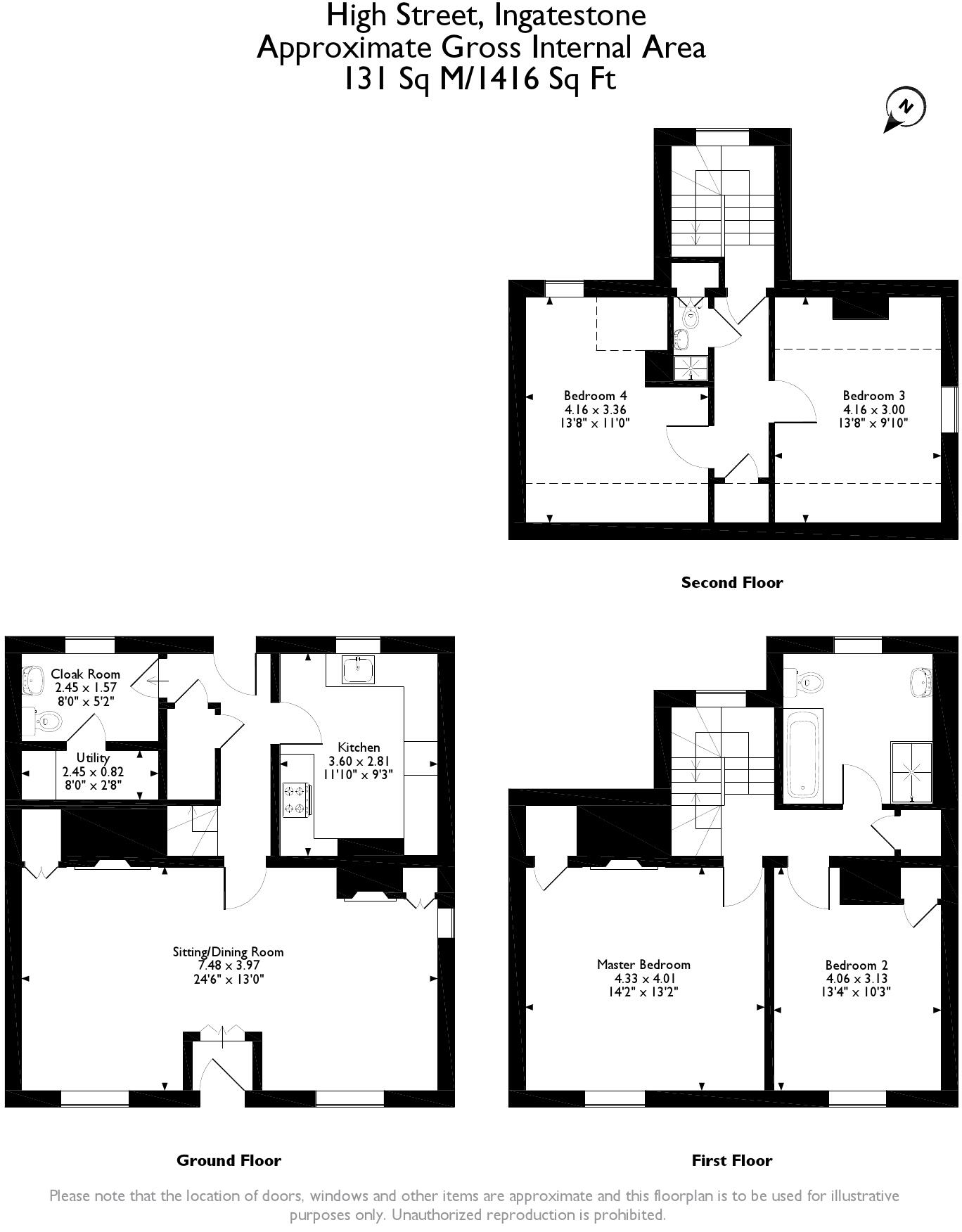
The accommodation is arranged over three floors with two reception rooms, a handcrafted kitchen, utility/cloakroom, four bedrooms and two bathrooms. The second-floor vantage point offers impressive views over the churchyard and high street. Outside, a private brick-paved courtyard garden provides a sunny, low-maintenance retreat in the heart of the village.

This property is suited to families or buyers seeking a characterful town home with good transport links; the station is a short walk away with direct services to London. The setting in a very affluent, small-town area gives access to strong local amenities and several ‘Good’ rated schools nearby.

Buyers should note the home’s listed status. Grade II listing preserves important historic fabric but will restrict alterations and can complicate maintenance or modernisation. Broadband speeds are average; mobile signal is excellent. The property is offered Freehold and has no recorded flood risk.

Property Details

Image Descriptions

Floorplan Description

Rooms

Textual Property Features

Detected Visual Features

Nearby Schools

Nearest Bars And Restaurants

,,,,}

Nearest General Shops

,,}

Nearest Grocery shops

,,}

Nearest Supermarkets

,,}

Nearest Religious buildings

,,}

Nearest Medical buildings

,,,}

Nearest Airports

,}

Nearest Leisure Facilities

,,,,}

Nearest Tourist attractions

,,}

Nearest Train stations

,,,,}

Nearest Bus stations and stops

,,,,}

Nearest Hotels

,,}

Tags

Local Market Stats

Meta

High Res Images

Compatible Images

Low res Images

Thumbnails

Raw Images

High Res Floorplan Images

Compatible Floorplan Images

Low res Floorplan Images

FloorplanImages Thumbnail

Raw Floorplan Images