Three-bed village home with large garden and countryside views for outdoor lovers.
- South-facing approx. 80ft rear garden with summer house, greenhouse, workshop
- New double glazing fitted throughout, exterior recently repainted
- Spacious kitchen/dining with picture window and patio doors
- Cosy lounge with working wood-burning stove and exposed brick fireplace
- Loft fully boarded and insulated with lighting, power and storage
- LPG central heating; solid brick walls likely uninsulated (higher heat loss)
- Single principal bathroom and one W/C; some modernisation may be desired
- Freehold village location with A10 access, very low local crime
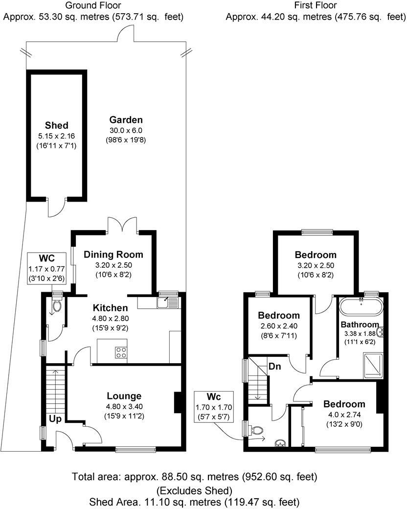
Set in a quiet village with direct access to the A10, this 1930s end-terrace cottage combines countryside views with practical modern upgrades. The heart of the home is a bright kitchen/dining area with a large picture window and patio doors that open onto a south-facing, approximately 80ft garden — ideal for entertaining, growing vegetables or letting dogs run freely.
Upstairs are three bedrooms that look over open farmland, plus a generously sized bathroom with a full-length bath and a double-length walk-in shower. The cosy front lounge centres on an exposed brick hearth with a cast-iron wood-burning stove, offering real character and efficient winter warmth.
Recent works include full external repainting and new double glazing throughout. The loft is fully boarded and insulated with fitted shelving, and the long garden includes a powered workshop, summer house and greenhouse — ready for hobbyists or home-working. Heating runs from an LPG boiler and radiators; the property’s solid brick walls are likely uninsulated, so consider heating costs and future insulation options.
This freehold village home will suit buyers seeking peaceful country living close to commuter routes, families craving outdoor space, or those looking for a well-presented cottage with scope to personalise. Note the single main bathroom, LPG fuel source, and mid‑20th century construction which may prompt targeted modernisation and insulation improvements over time.
3 bedroom semi-detached house for sale in Ford Hill, Little Hadham, SG11 — £637,500 • 3 bed • 1 bath • 1057 ft²
4 bedroom detached house for sale in Cottered, Buntingford, SG9 9PS, SG9 — £845,000 • 4 bed • 2 bath • 1583 ft²
4 bedroom semi-detached house for sale in Lower Cottages, Brent Pelham, Buntingford, SG9 — £775,000 • 4 bed • 3 bath • 1998 ft²
3 bedroom semi-detached house for sale in Layston Cottages, Hare Street, SG9 — £425,000 • 3 bed • 1 bath • 900 ft²
3 bedroom semi-detached house for sale in Mead Villa, Hare Street, Buntingford, SG9 — £485,000 • 3 bed • 1 bath • 1112 ft²
3 bedroom end of terrace house for sale in Paddock Road, Buntingford, SG9 — £499,000 • 3 bed • 1 bath • 949 ft²






















































































