Large renovated three‑bed duplex with huge terrace and River Medway views.
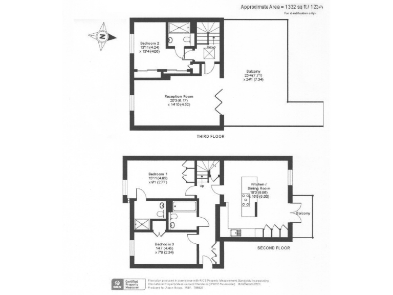
- 1,332 sq ft top-floor duplex with extensive waterside views
- 25'4" x 24'1" terrace plus a second balcony off the kitchen
- Recently renovated kitchen; high‑quality gloss units and granite tops
- Three double bedrooms, two ensuite shower rooms and family bathroom
- Two secure allocated garage spaces including EV charging point
- Leasehold: 99 years remaining; ground rent £300 p.a.
- Service charge c. £4,104 p.a. (c. £342 pcm); council tax classed expensive
- No flood risk; built 2003–2006; lift access from garage
Bright, spacious and positioned for dramatic waterside living, this top‑floor duplex on Phalarope Way offers 1,332 sq ft of freshly updated accommodation and sweeping River Medway views from almost every room. The heart of the home is a high‑quality open plan kitchen/diner with gloss white units, black granite worktops, island/breakfast bar and a separate balcony for morning coffee. The generous lounge opens via bifold doors onto a very large 25'4" x 24'1" terrace — ideal for entertaining or relaxed family evenings overlooking the marina.
Sleeping accommodation is arranged across two levels and includes three double bedrooms, two ensuite shower rooms plus a modern family bathroom. The master bedroom benefits from built‑in wardrobes and a refurbished ensuite. Practical features include two allocated undercover parking spaces in the secure garage (with an EV charging point), lift access from the garage and double glazing throughout. The building sits in a quiet cul‑de‑sac on St Mary’s Island, a sustainable waterside community with marinas, parkland and a riverside walk, while The Quay’s shops, cafes and restaurants are around a ten‑minute walk away.
Buyers should note this is a leasehold apartment with 99 years remaining, an annual ground rent of £300 and service charges currently running at £4,104 per year (c. £342 pcm). Council tax is described as expensive. The apartment has been newly renovated but, as with many waterfront developments, communal costs and ongoing management should be factored into budgets.
This property will suit purchasers seeking a ready‑to‑move‑into family home or an executive waterside pied‑à‑terre with strong rental appeal. With rare terrace space of this scale and unrivalled river views, early viewing is recommended to appreciate the size, finish and setting.
2 bedroom flat for sale in Goldcrest Drive, St. Marys Island, ME4 — £250,000 • 2 bed • 1 bath • 668 ft²
2 bedroom apartment for sale in Dunlin Drive, St. Mary's Island, Chatham Maritime, ME4 — £249,995 • 2 bed • 2 bath • 389 ft²
3 bedroom apartment for sale in Goldcrest Drive, St. Mary's Island, Chatham Maritime, ME4 — £335,000 • 3 bed • 2 bath • 805 ft²
3 bedroom apartment for sale in Phalarope Way, St. Mary's Island, Chatham Maritime, ME4 — £299,995 • 3 bed • 2 bath • 1235 ft²
2 bedroom apartment for sale in Malin House, St Marys Island, ME4 — £300,000 • 2 bed • 2 bath • 961 ft²
3 bedroom duplex for sale in Phalarope Way, St. Mary's Island, Chatham, Kent, ME4 — £250,000 • 3 bed • 2 bath • 819 ft²


























































