Chain-free two-bedroom bungalow with garage and extension potential.
Spacious detached bungalow on a large, level plot
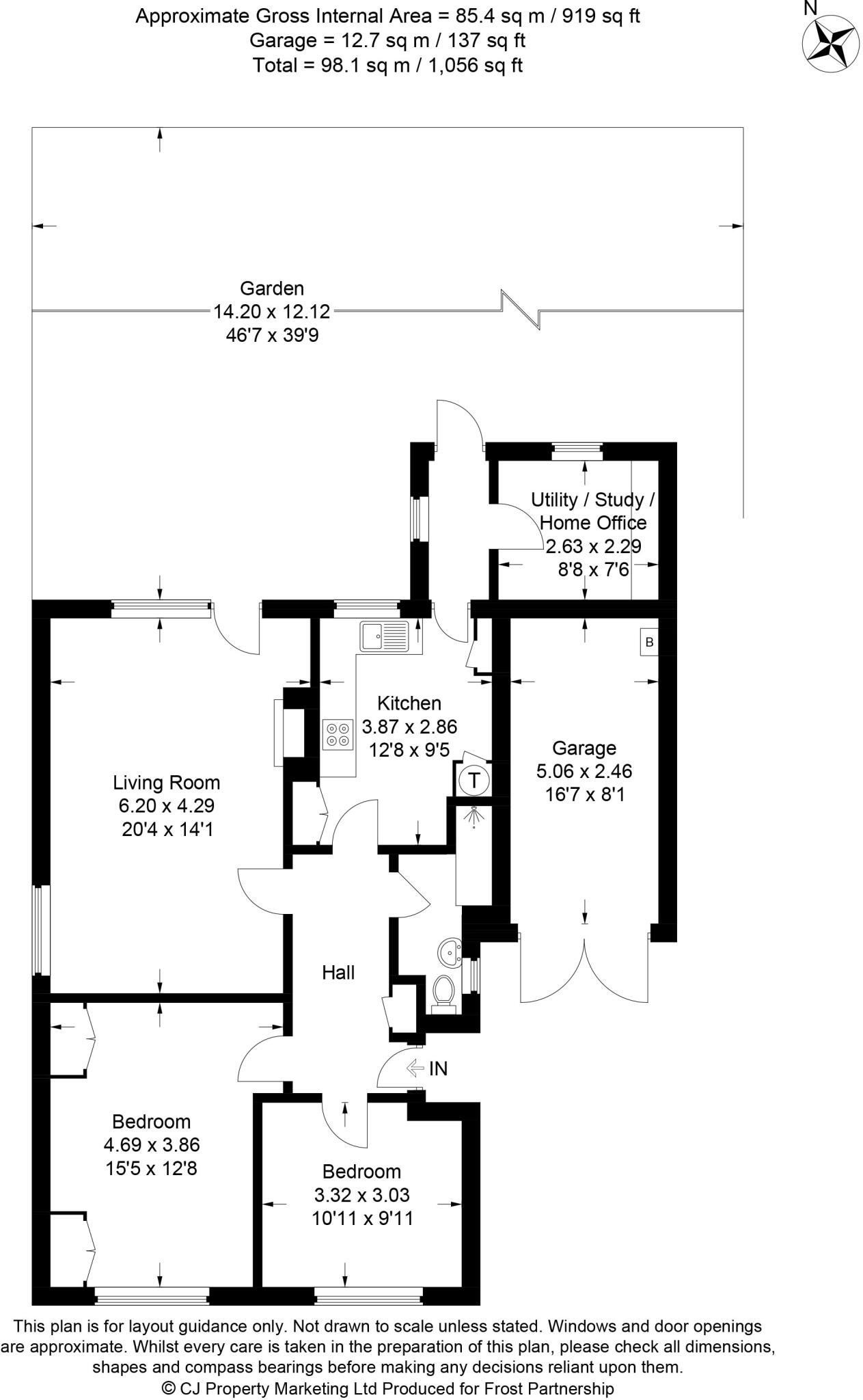
Set on a generous level plot in a quiet cul-de-sac, this detached two-bedroom bungalow offers comfortable single-storey living close to Chalfont St. Giles village. The large living room, double-glazed windows, mains gas boiler and driveway with garage deliver practical, low-maintenance day-to-day living for buyers looking to downsize without sacrificing space.
The mature rear garden (approximately 46' x 39') and sizable plot present scope to extend subject to planning permission, creating chance to add extra living space or reconfigure layout. The property is offered chain free (no onward chain) and sits in a very low-crime, affluent neighbourhood with excellent mobile signal and fast broadband — useful for home working or staying connected.
Buyers should note the bungalow has a dated 1970s kitchen and only one bathroom, so some updating will be required to modernise finishes. Any extension would require planning permission; no consent is currently in place. Council tax is described as expensive, a useful consideration for budgeting.
Overall this home is well suited to downsizers or small households seeking single-level living on a large plot with parking and garage, and who are comfortable investing in modest refurbishment or pursuing an extension (STPP) to increase value and space.
4 bedroom bungalow for sale in Sycamore Close, Chalfont St. Giles, HP8 — £740,000 • 4 bed • 2 bath • 1375 ft²
4 bedroom bungalow for sale in Sycamore Close, Chalfont St. Giles, Buckinghamshire, HP8 — £799,950 • 4 bed • 2 bath • 1514 ft²
2 bedroom bungalow for sale in Kings Close, Chalfont St. Giles, HP8 — £525,000 • 2 bed • 1 bath • 988 ft²
2 bedroom bungalow for sale in Palliser Road, Chalfont St. Giles, HP8 — £529,950 • 2 bed • 1 bath • 740 ft²
4 bedroom bungalow for sale in Deanway, Chalfont St. Giles, Buckinghamshire, HP8 — £750,000 • 4 bed • 2 bath • 1020 ft²
4 bedroom house for sale in Stylecroft Road, Chalfont St. Giles, HP8 — £849,999 • 4 bed • 2 bath • 1683 ft²


































































