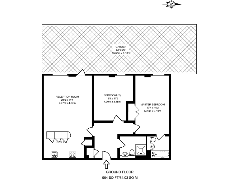
Spacious two-bedroom ground-floor home near shops and schools.
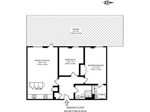
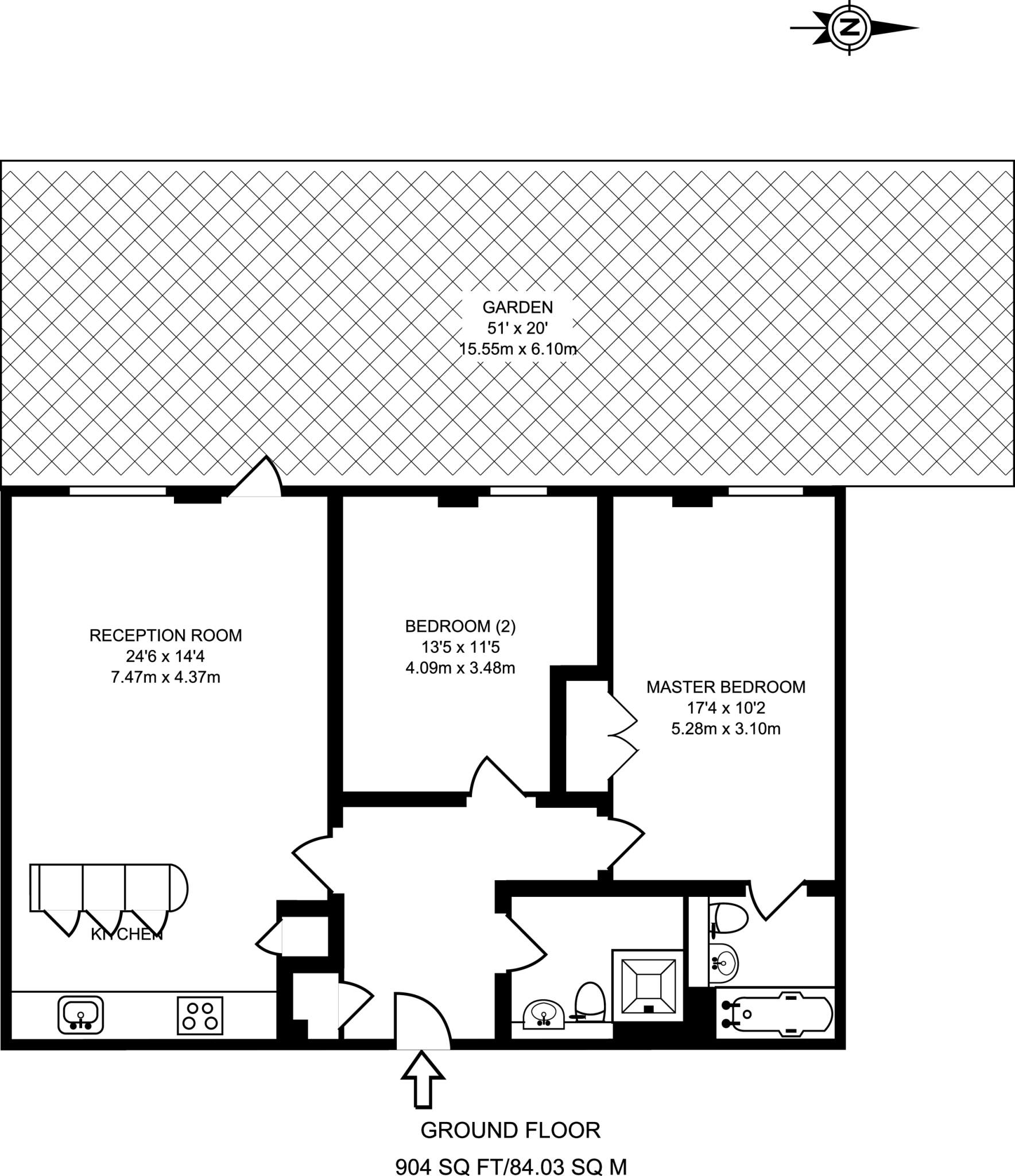
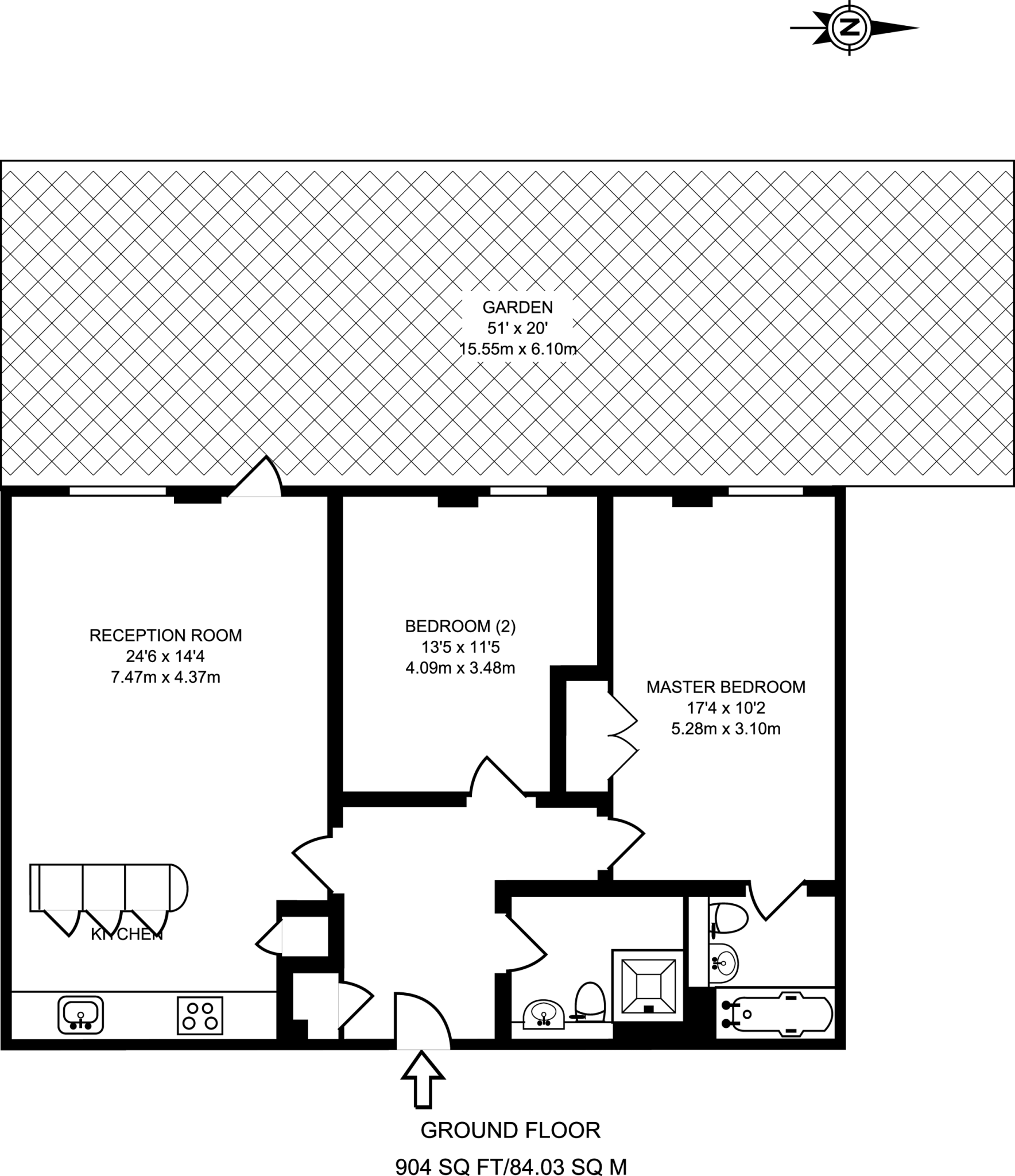
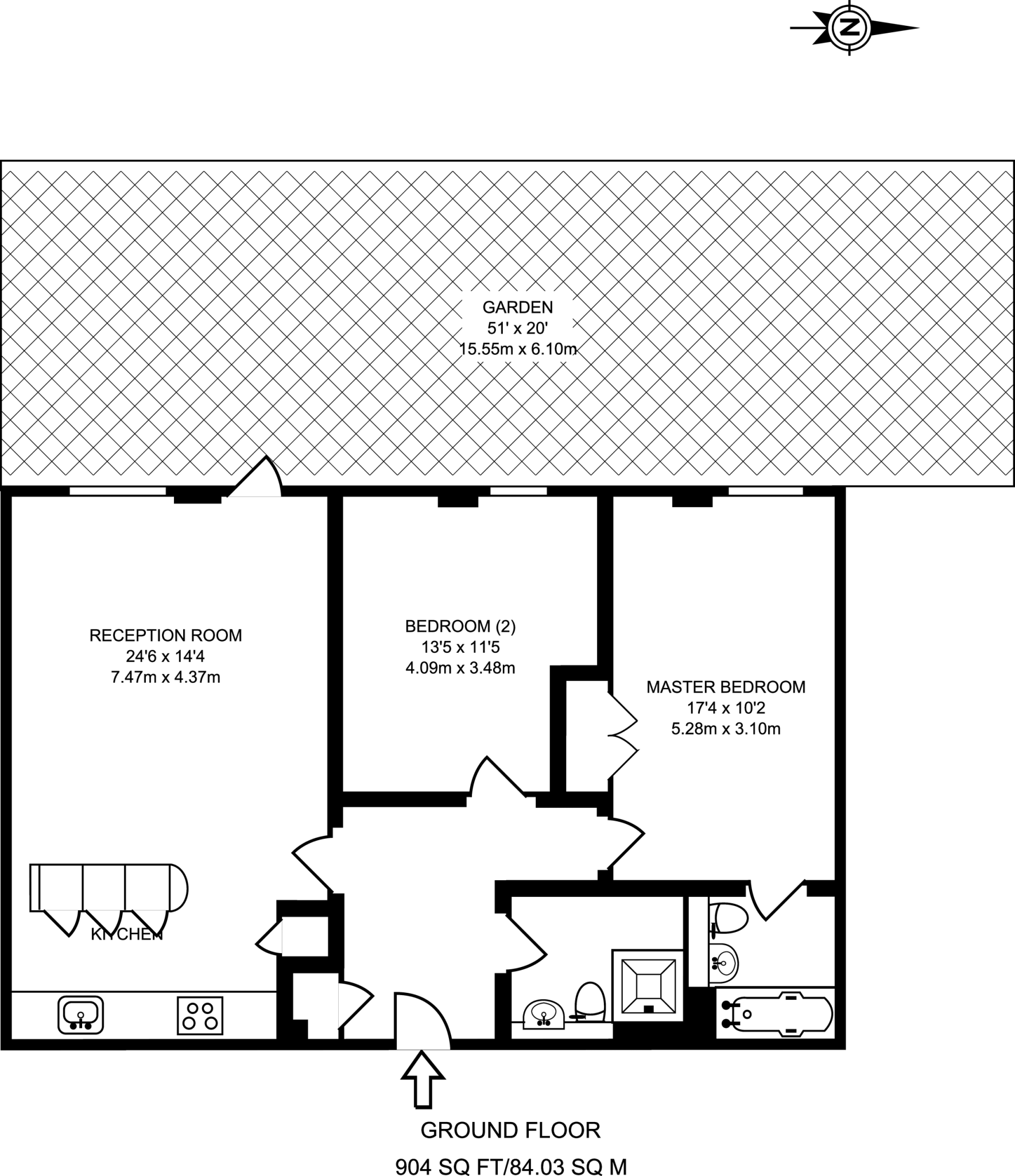
Large private garden directly off open-plan living
A roomy two-bedroom ground-floor apartment in Chiswick Green Studios, offering a rare combination of private outdoor space and secure, porter-served living. The open-plan kitchen and reception open directly to a large private garden, creating an easy indoor–outdoor flow that suits young families or buyers who value low-maintenance, contemporary living. High ceilings and neutral decor give a spacious, loft-style feel across the 904 sq ft layout.
Practical benefits include underground parking and a secure gated entrance within one of Chiswick’s most desirable developments, and the location is close to Chiswick High Road’s shops, cafes and schools. The area scores highly for professional residents and benefits from excellent mobile and broadband connectivity, with no recorded flood risk.
Important considerations: the property is leasehold, so buyers should allow for ground rent and service charges typical of private managed developments. Heating is electric (boiler and radiators), which can be more costly than gas in this area. Crime statistics are above average locally; prospective purchasers should satisfy themselves on security and management arrangements.
Overall, this modern, well-proportioned flat suits a buyer seeking a convenient Chiswick address with private outdoor space, secure parking and porterage, while accepting the ongoing costs and responsibilities associated with leasehold living.
2 bedroom apartment for sale in Upham Park Road, London, W4 — £875,000 • 2 bed • 2 bath • 971 ft²
2 bedroom flat for sale in Barrowgate Road, London, W4 — £925,000 • 2 bed • 2 bath • 825 ft²
2 bedroom flat for sale in Ravenscroft Road, Chiswick, London W4 — £500,000 • 2 bed • 1 bath • 633 ft²
2 bedroom flat for sale in Barrowgate Road, London, W4 — £995,000 • 2 bed • 2 bath • 794 ft²
2 bedroom flat for sale in 126 Barrowgate Rd, Chiswick, W4 — £925,000 • 2 bed • 2 bath • 825 ft²
2 bedroom flat for sale in Ellesmere Road, Grove Park, Chiswick, W4 — £525,000 • 2 bed • 2 bath • 881 ft²


















































































































































































































































