Substantial mixed-use Victorian freehold near Mortlake station — auction sale, tenants in situ.
Freehold detached Victorian property with three self-contained units
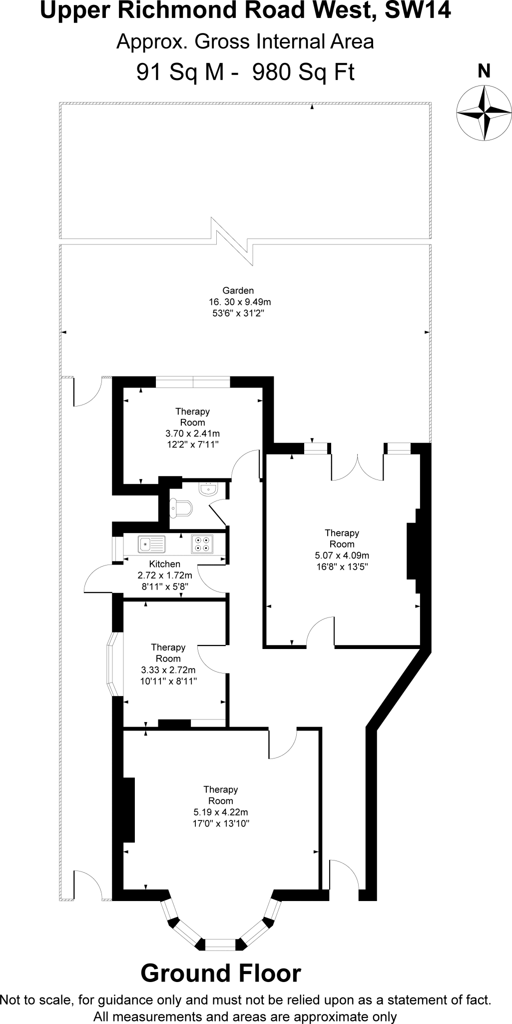
A substantial detached Victorian property in East Sheen, offered as a freehold package with immediate exchange via Secure Sale online auction. The building is currently mixed-use: a ground-floor therapy centre with garden access, a large two-bedroom flat on the first floor and a one-bedroom flat on the second. The accommodation is generous and flexible, suitable for an investor seeking an income-producing asset or an owner-occupier planning a live/work conversion.
Practical positives include a sizeable private garden, high ceilings, bay windows and good natural light throughout. The location is strong — a short walk to Mortlake station, easy access to East Sheen’s shops and Richmond Park, excellent mobile signal and fast broadband make the site well-connected for residents and businesses alike.
Buyers should note this is an auction sale under Secure Sale terms with a starting bid of £1,300,000. The sale requires a non-refundable 5% deposit on exchange and a reservation fee of up to 4.5% (minimum £6,000 inc VAT) on agreement. All tenants currently in place have indicated they wish to remain; the property is sold with those tenancies in situ unless otherwise negotiated.
The building dates from the early 20th century, constructed in solid brick with no known cavity insulation and with double glazing of unknown install date — there may be scope (and cost) for thermal upgrades, reconfiguration or full refurbishment depending on buyer plans. Viewings are strictly by appointment and bidders must complete identity verification as part of the auction process.
Property for sale in Upper Richmond Road West, East Sheen, London, Richmond, SW14 7JR, SW14 — £1,300,000 • 1 bed • 1 bath • 2533 ft²
5 bedroom detached house for sale in Penrhyn Crescent, East Sheen, SW14 — £2,000,000 • 5 bed • 3 bath • 3190 ft²
5 bedroom house for sale in Upper Richmond Road West, East Sheen, SW14 — £2,750,000 • 5 bed • 3 bath • 2970 ft²
5 bedroom detached house for sale in Upper Richmond Road West, London, SW14 — £2,750,000 • 5 bed • 2 bath • 2970 ft²
4 bedroom semi-detached house for sale in Leinster Avenue, East Sheen, SW14 — £1,200,000 • 4 bed • 2 bath • 1529 ft²
6 bedroom detached house for sale in Upper Richmond Road West, East Sheen, SW14 — £1,000,000 • 6 bed • 1 bath • 2900 ft²






























































