Large three-bedroom flat with garage and close access to Jesmond Dene and top schools.
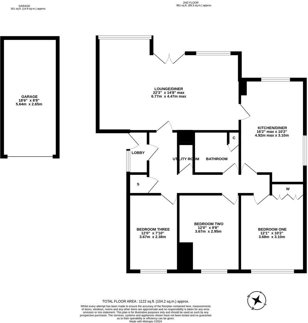
22ft lounge-diner with Juliet balcony and green outlook
Approximately 1,122 sq ft (spacious second-floor apartment)
Three bedrooms; single bathroom (one bathroom for three bedrooms)
Private garage plus additional parking space to front
Long lease (979 years) and secure communal entry system
Service charge £1,665.92 per annum; leasehold tenure
Electric underfloor heating and EPC rating E (higher running costs possible)
Double glazing installed before 2002 (may need upgrade for efficiency)
This well-presented three-bedroom second-floor apartment sits in Burlington Court on Adderstone Crescent, one of Jesmond’s most desirable addresses. At about 1,122 sq ft the layout feels generous for an apartment: a 22ft lounge-diner with Juliet balcony overlooks green aspects towards Jesmond Dene, while a separate kitchen-diner, utility room and storage cupboards add everyday practicality for family life or sharers.
The long lease (979 years) and private garage with an additional parking space are rare conveniences in this area. Modern touches include electric underfloor heating and double glazing, and the building benefits from secure communal entry. Local amenities, excellent broadband and a low-crime, very affluent neighbourhood make this an attractive home for professionals and families who want easy access to Jesmond’s schools, cafés and green spaces.
Buyers should note a few practical points: the property is leasehold with an annual service charge of £1,665.92 and an EPC rating of E. Heating is electric (underfloor) rather than gas, which may affect running costs, and the glazing predates 2002 so replacement could improve efficiency. There is a single bathroom serving three bedrooms — acceptable for many but worth considering for larger families.
Overall this apartment offers spacious, comfortable accommodation in a prime Jesmond location with strong lifestyle appeal and sensible long-term security from the extended lease. It’s especially well suited to professional households or families seeking space, parking and proximity to top-rated local schools and green amenity.
2 bedroom flat for sale in Dulerton Court, Adderstone Crescent, Jesmond, Newcastle upon Tyne, NE2 — £240,000 • 2 bed • 1 bath • 712 ft²
3 bedroom maisonette for sale in Adderstone Crescent, Newcastle Upon Tyne, Tyne and Wear, NE2 — £499,950 • 3 bed • 3 bath • 1604 ft²
3 bedroom apartment for sale in 4 Adderstone Court, Adderstone Crescent, Jesmond, Newcastle Upon Tyne, Tyne and Wear, NE2 — £395,000 • 3 bed • 2 bath • 1021 ft²
2 bedroom apartment for sale in Audley Court, Adderstone Crescent, Jesmond, Newcastle Upon Tyne, NE2 — £259,950 • 2 bed • 1 bath • 702 ft²
3 bedroom flat for sale in Chandler Court, Adderstone Crescent, Jesmond, Newcastle Upon Tyne, NE2 — £399,000 • 3 bed • 1 bath
2 bedroom apartment for sale in Dene Court, Jesmond Park East, Newcastle Upon Tyne, NE7 — £160,000 • 2 bed • 1 bath






















































