A modern, secure family home with leisure wing and excellent commuter links.
Chain free five-bedroom detached residence with private lift
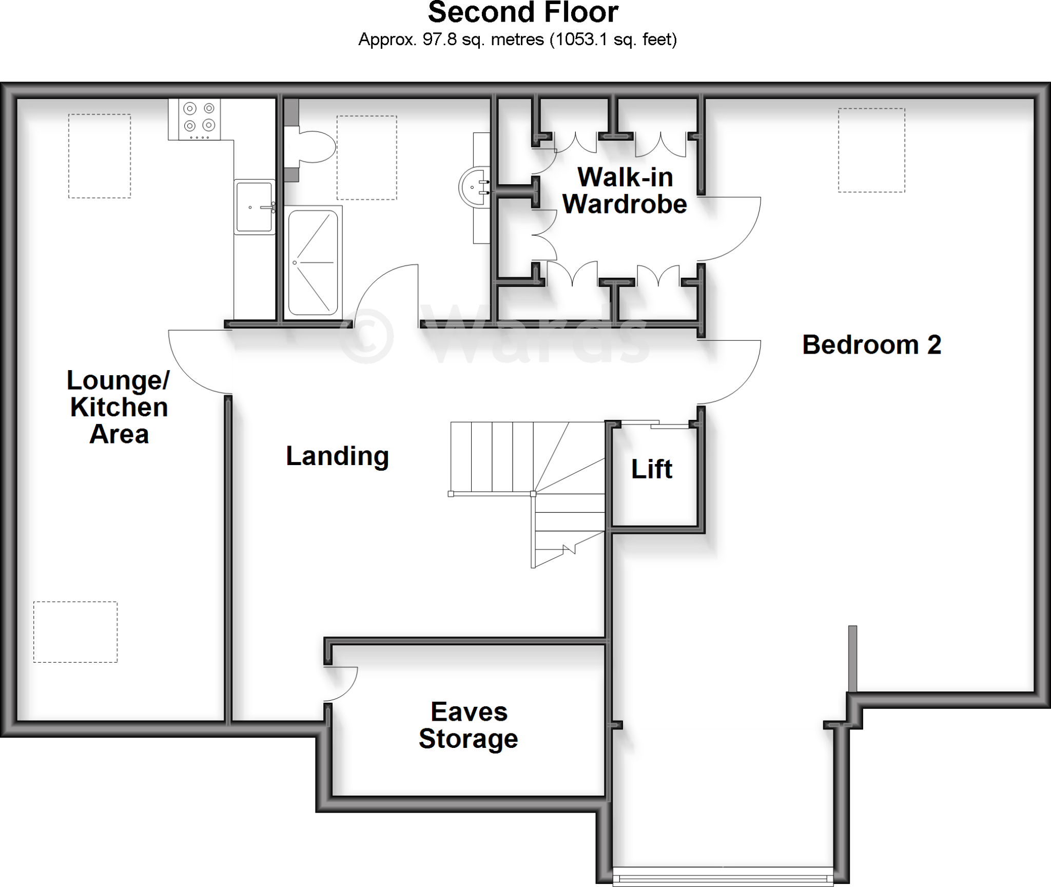
Finished in 2021 and offered chain free, this five-bedroom detached home is designed for contemporary family living and entertaining. A private lift links all three floors while a lower-ground bar, cinema room and gym create a dedicated leisure wing. The top floor functions as a self-contained suite with kitchen, lounge and bathroom, useful for guests or multi-generational living.
Technology and security are standout features: a Control4 smart-home system automates lighting, comfort and CCTV, with sleek electronic gates, alarm and remote-controlled garage with black-out glass. The Poggenpohl kitchen with premium Gaggenau appliances and underfloor heating throughout underline the property’s high-spec finish.
The plot is large with an extended rear garden, contemporary patio and versatile outbuilding for fitness or leisure. Transport links are strong, with easy access to the A227, A2/M2 and M20/M25; Ebbsfleet International offers high-speed rail to London St Pancras (circa 18 minutes). Local schooling includes several Good and Outstanding-rated options, though nearby primary provision includes one school rated “Requires improvement”.
Practical notes: council tax is very expensive. Double glazing was installed before 2002 and may need updating to match the home’s otherwise modern specification. Interested buyers should verify planning and compliance where conversions or extensions are claimed.
5 bedroom detached house for sale in Fawkham Avenue, New Barn, DA3 — £2,500,000 • 5 bed • 5 bath • 6489 ft²
5 bedroom detached house for sale in Brickmakers Way, Hempstead, Gillingham, Kent, ME7 — £850,000 • 5 bed • 3 bath • 2068 ft²
4 bedroom detached house for sale in Springate Close, Walderslade, Chatham, Kent, ME5 — £540,000 • 4 bed • 4 bath
3 bedroom detached house for sale in Old Downs, Hartley, Kent, DA3 — £1,100,000 • 3 bed • 2 bath • 2500 ft²
5 bedroom detached house for sale in Viking Way, West Kingsdown, Sevenoaks, Kent, TN15 — £825,000 • 5 bed • 4 bath • 2138 ft²
5 bedroom detached house for sale in Harrison Avenue, Longfield, DA3 — £700,000 • 5 bed • 3 bath • 1800 ft²














































































































































