Three-bedroom family home with large garden, garage and strong renovation potential.
3 large bedrooms with family bathroom
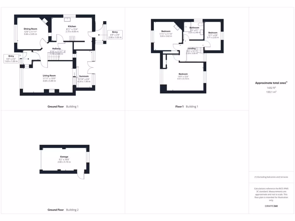
Generous 1,326 sq ft footprint and flexible layout
Detached garage plus driveway parking for multiple vehicles
Large, flat rear garden — good for extensions (subject to planning)
Requires renovation; roof likely needs attention
Slow broadband despite excellent mobile signal
Freehold in very affluent, low-crime neighbourhood
Close to good primary schools and local amenities
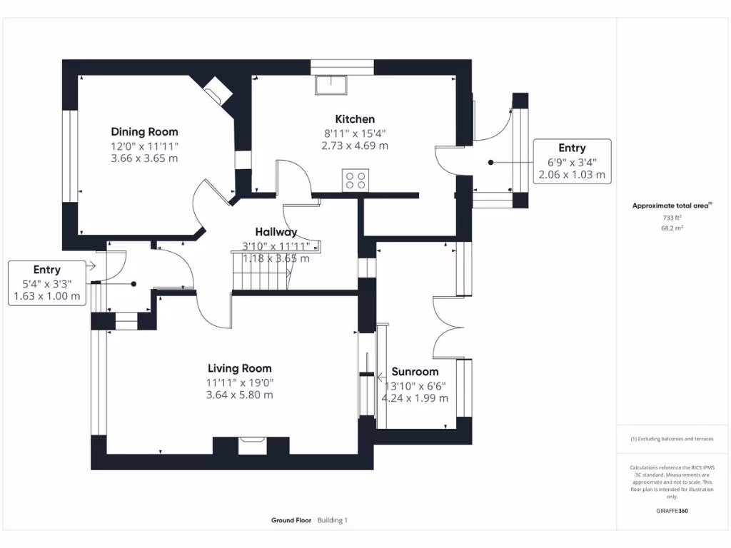
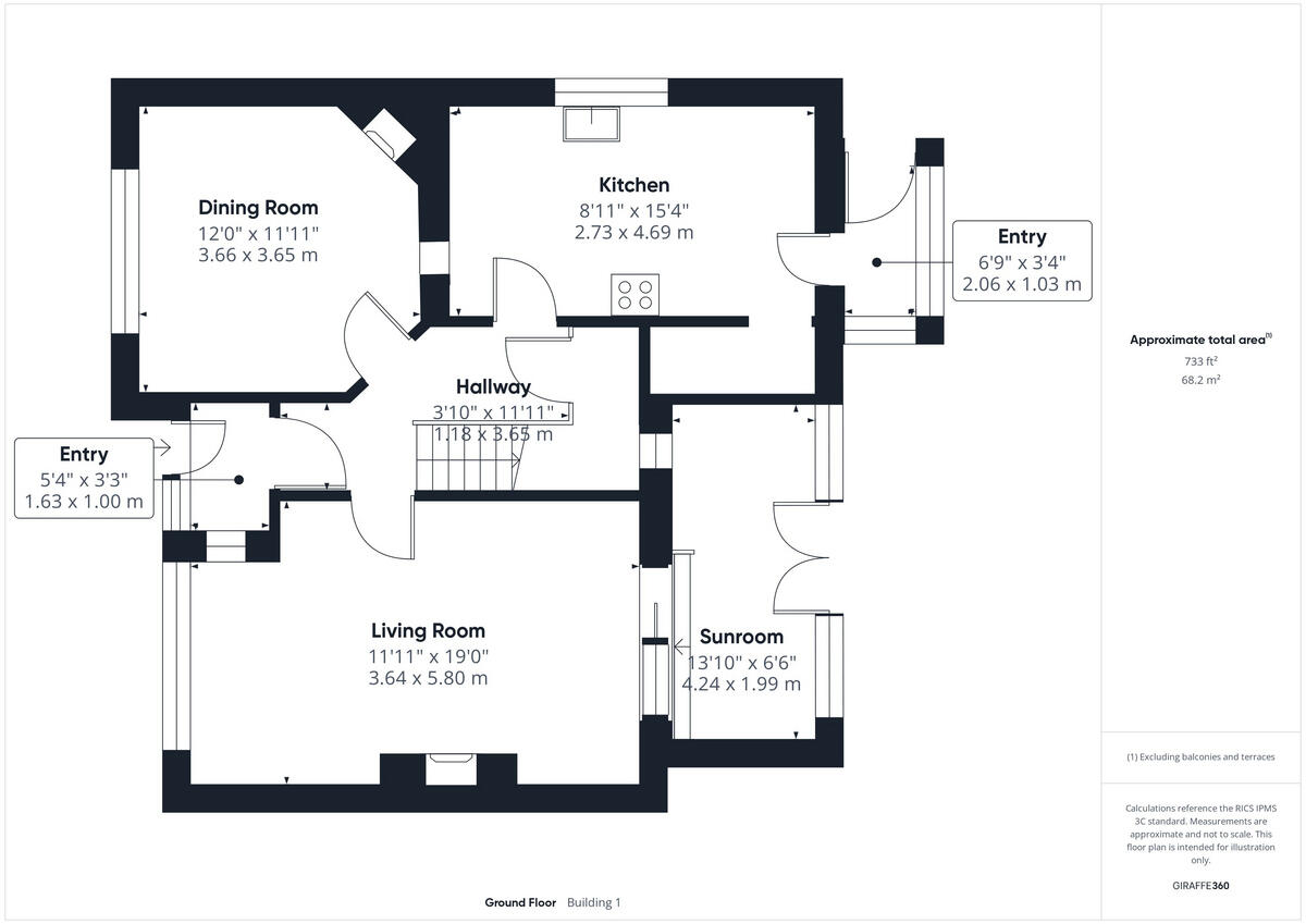
Set on the outskirts of Whitby, this roomy three-bedroom semi-detached home offers a generous 1,326 sq ft footprint and a deceptively large, flat garden — ideal for family play, landscaping or a future extension (subject to planning). The detached garage and driveway provide useful parking and storage for bikes, tools or a workshop.
Inside, traditional rooms include a bright living room with a cosy fireplace, a separate dining room and a sunroom/conservatory that overlooks the garden. The layout suits family life with flexible ground-floor space for a home office, playroom or occasional guest use. Three good-sized bedrooms and a family bathroom occupy the first floor.
The property is Freehold and sits in a very affluent, low-crime area close to primary and secondary schools, shops and local amenities — convenient for school runs and everyday living. Mobile signal is excellent for remote working; however broadband speeds are slow, which may matter for some households.
Practically, the house requires renovation throughout and some specific work — notably to the roof — so it will suit buyers looking to refurbish and add value rather than those wanting a move-in-ready home. Heating is mains gas with a boiler and radiators; windows are double glazed though installation date is unknown. Overall this is a spacious family home with strong potential for improvement.
4 bedroom semi-detached house for sale in 39 St.Andrews Road, Whitby, YO21 — £375,000 • 4 bed • 2 bath • 1398 ft²
2 bedroom semi-detached house for sale in St Peters Road, Whitby, North Yorkshire, YO22 — £185,000 • 2 bed • 1 bath • 769 ft²
3 bedroom semi-detached house for sale in Captain Cooks Crescent, Whitby, YO22 — £279,950 • 3 bed • 1 bath • 899 ft²
3 bedroom semi-detached house for sale in St. Peters Court, Whitby, North Yorkshire, YO22 — £235,000 • 3 bed • 1 bath • 771 ft²
3 bedroom semi-detached house for sale in 64 Stakesby Road, Whitby, YO21 — £295,000 • 3 bed • 1 bath • 972 ft²
3 bedroom semi-detached house for sale in Westbourne Road, Whitby, YO21 — £220,000 • 3 bed • 1 bath • 780 ft²


































































































































