Spacious industrial-style home near green parkland and excellent transport links.
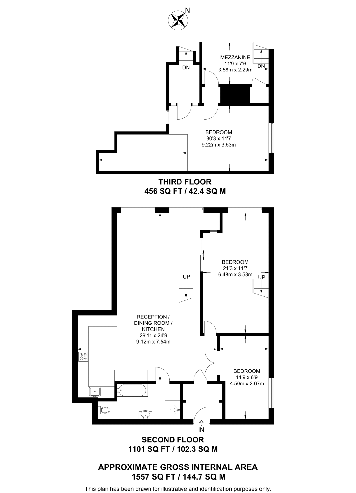
- Approximately 1,557 sq ft arranged over two levels with mezzanine office/bedroom
- Double-height reception, oversized loft windows and exposed brick feature wall
- Three large bedrooms; one contemporary family bathroom only
- Open-plan kitchen and dining; hardwood floors throughout principal spaces
- Leasehold tenure — check remaining term and service charges
- Building likely system-built with no loft insulation; retrofit may be needed
- Short walk to Clapton Overground and close to Springfield Park and Lea Valley
- Local area: very deprived with above-average crime; consider security/insurance
Set within a converted Art Deco factory by Sir Owen Williams, this distinctive multi-level flat delivers expansive, light-filled living across approximately 1,557 sq ft. The double-height reception with oversized loft windows, exposed brick and hardwood floors gives the apartment a dramatic, industrial character; a mezzanine level provides flexible space for an office or additional sleeping area.
Three large bedrooms and a generous contemporary bathroom suit a family or sharer household, while the open-plan kitchen and dining area creates a sociable heart to the home. The property benefits from double glazing, mains gas central heating and fast broadband in an inner-city, well-connected location — Clapton Overground is a short walk and green spaces including Springfield Park and the Lea Valley are nearby.
Practical points to note: the flat is leasehold, has only one bathroom for three bedrooms, and the building’s system-built walls are assumed to lack insulation, which may affect running costs and future retrofit work. The immediate area scores as very deprived with above-average crime statistics — worth considering when comparing local prices and insurance costs.
This apartment suits buyers seeking a spacious, characterful home with strong design bones and flexible layouts. It will particularly appeal to families and professionals who value proximity to green space and transport, and who are prepared to manage or invest in any targeted improvements to insulation or communal fabric.
3 bedroom flat for sale in Independent Place III, London E8 — £1,100,000 • 3 bed • 2 bath • 1374 ft²
1 bedroom flat for sale in Bramshaw Road, Victoria Park, London, E9 — £900,000 • 1 bed • 1 bath • 1213 ft²
1 bedroom flat for sale in Dehavilland Studios, Clapton, E5 — £625,000 • 1 bed • 1 bath • 1200 ft²
3 bedroom flat for sale in Wilton Way, London, E8 — £725,000 • 3 bed • 2 bath • 844 ft²
3 bedroom apartment for sale in Block B, 2 Fawe Street, London, E14 — £1,000,000 • 3 bed • 2 bath • 1740 ft²
1 bedroom apartment for sale in King Edward's Road, London, E9 — £575,000 • 1 bed • 1 bath • 772 ft²














































































































































