Large renovation plot with barn — strong development potential, subject to consents.
Approx. 0.5 acre plot with superb open countryside views
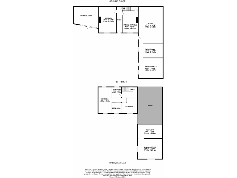
An extensive stone farmhouse with an adjoining large barn sits in about 0.5 acres of land, offering long rural views and strong development potential. The main farmhouse and outbuildings are ripe for a full renovation or a barn conversion project; investors or experienced developers could create one large home or potentially two dwellings subject to planning consent. The site includes yard access to the front and gated land to the rear, providing flexible outdoor space for landscaping or subdivision.
The property has been empty for some time and requires substantial works: structural repairs, full services renewal (electricity and water previously present), and installation of a septic tank. The first floor is in a fragile state and must be accessed with caution; internal refurbishment, new heating and plumbing, and likely new windows/doors will be needed. EPC rating G reflects the current energy condition.
Layout offers straightforward conversion scope: ground-floor lounge and dining kitchen in the farmhouse, with two large first-floor rooms that could be partitioned into three bedrooms and a house bathroom. The single-storey outbuilding and the large stone barn (with double-height space and loft rooms) extend the usable footprint and present opportunities for additional accommodation or ancillary uses, subject to planning.
This is a high-potential but high-risk opportunity best suited to buyers with renovation experience or development appetite. The hamlet setting, very low crime, excellent mobile signal and fast broadband add practical appeal, while nearby good and outstanding-rated schools and a very affluent local area support long-term value once refurbished.
4 bedroom semi-detached house for sale in Drake Hill Cottage, Hey Slack Lane, Cumberworth, Huddersfield, HD8 — £799,950 • 4 bed • 2 bath • 1690 ft²
Detached house for sale in Upper House Farm, Hopton Lane, Upper Hopton, WF14 8JP, WF14 — £1,450,000 • 1 bed • 1 bath • 3052 ft²
Barn for sale in Barns & Land at Knabbs Hall Farm, Knabbs Lane, S75 — £450,000 • 1 bed • 1 bath
3 bedroom barn conversion for sale in Dam Head Lane, Lepton, HD8 — £1,200,000 • 3 bed • 3 bath • 1765 ft²
Barn for sale in The Stable Barn, Bullcliff Grange, Denby Dale Road, WF4 — £160,000 • 1 bed • 1 bath • 7600 ft²
Barn for sale in Station Road, Shepley, HD8 — £300,000 • 1 bed • 1 bath • 1800 ft²


















































