Chain-free 2-bed ground-floor flat with large private garden and long lease.
Two true double bedrooms, no compromise on sleeping space
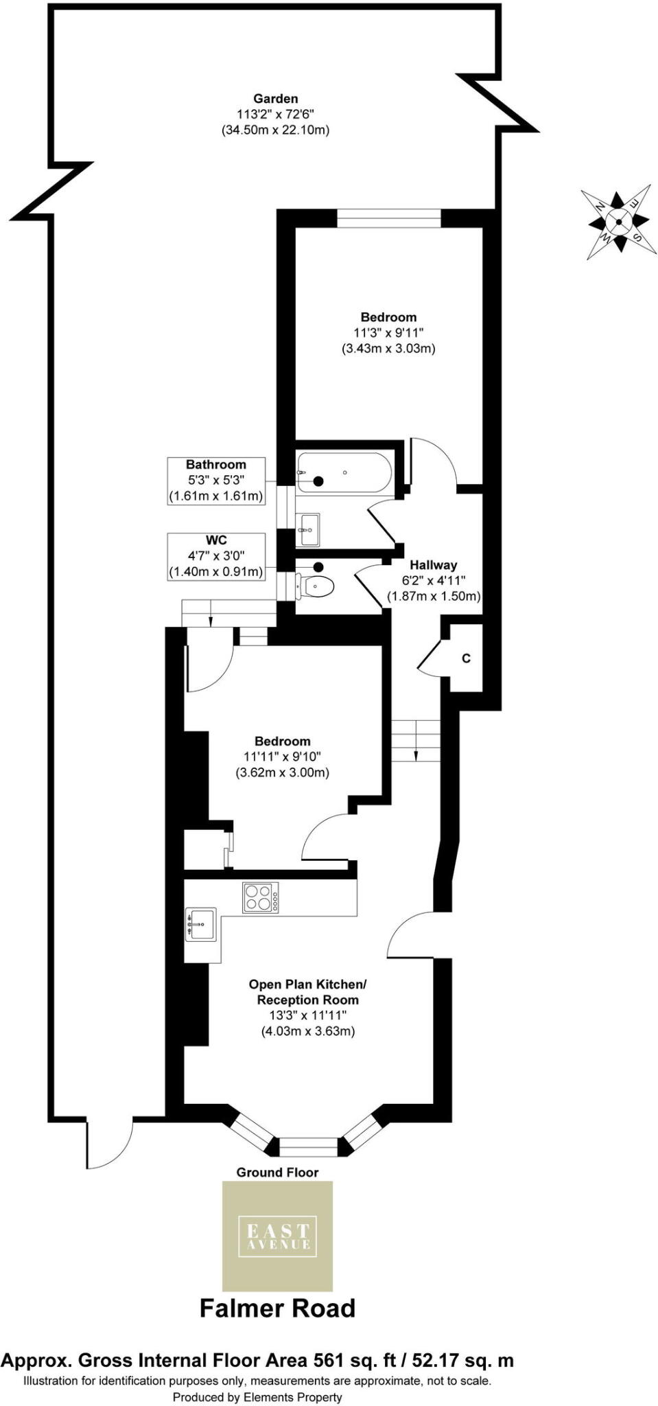
Set on a quiet residential turning off Forest Road, this ground-floor two-bedroom flat offers a rare combination of period character and modern finish. The open-plan reception and kitchen benefit from high ceilings and natural light, while both bedrooms are true doubles — useful for couples, sharers or a small family. A private side entrance leads to a generous private garden, an uncommon feature for a ground-floor flat in the area.
Practical strengths include a very long lease of around 900 years, chain-free sale, double glazing and mains gas central heating. Service charges are modest at about £800, and council tax is described as cheap, helping running costs remain low. The property sits moments from Lloyd Park and about a 10-minute walk to Walthamstow Central, with plentiful local amenities and good broadband and mobile signal.
Be realistic about the constraints: the flat is small overall (approximately 561 sq ft) and the building’s solid brick walls are assumed to have no cavity insulation, so some thermal upgrades could be needed to improve comfort and efficiency. The wider area is described as deprived with average crime levels; while local schools include several rated Good and Outstanding, neighbourhood conditions are mixed.
This home will suit first-time buyers or downsizers seeking value with outdoor space and long-term security from the lease. It also presents straightforward potential for modest improvement works to increase comfort and future resale value.
2 bedroom flat for sale in Kitchener Road, London, E17 — £350,000 • 2 bed • 1 bath • 600 ft²
2 bedroom flat for sale in Forest Road, Walthamstow, E17 — £425,000 • 2 bed • 1 bath • 818 ft²
2 bedroom flat for sale in Gandhi Close, Walthamstow, London, E17 — £325,000 • 2 bed • 1 bath • 548 ft²
2 bedroom flat for sale in Woodstock Road, Walthamstow, London, E17 — £450,000 • 2 bed • 1 bath • 656 ft²
2 bedroom apartment for sale in Westbury Road, Walthamstow, E17 — £550,000 • 2 bed • 1 bath • 599 ft²
2 bedroom flat for sale in Somerset Road, Walthamstow, E17 — £550,000 • 2 bed • 1 bath • 665 ft²










































































