Well-proportioned three-bedroom home with two parking spaces and large garden.
Three generous bedrooms with front views over Long Mountain
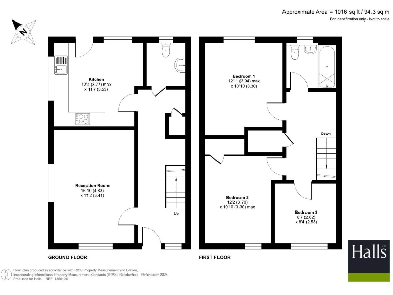
This well‑proportioned three‑bedroom end‑of‑terrace home sits at the end of a quiet cul‑de‑sac in Welshpool, with attractive views over Long Mountain from the front rooms. Built since 2012, the property offers practical modern finishes including gas central heating, double glazing and a relatively recent boiler (approx. 18 months). Two allocated parking spaces and a rear garden with two paved entertaining areas add everyday convenience and outdoor space.
Accommodation is arranged over two floors with a spacious entrance hall, ground‑floor W.C., lounge and fitted kitchen/diner. Upstairs are three generous bedrooms and a family bathroom. The layout and room sizes suit a young family or first‑time buyers seeking a move‑in ready home with modest maintenance needs.
The plot is unusually large for the development, providing scope to improve or extend subject to planning and covenants. The property is freehold and has no recorded flood risk. Practical positives include excellent mobile signal and fast broadband, helpful for remote working or streaming.
Notable drawbacks are factual and important: there is a single family bathroom only, and the property sits within an area recorded as very deprived which may concern some buyers. Council Tax is band D. Overall this is a sensible, modern family home offering good parking, outdoor space and pleasant views, but buyers should weigh local area indicators and the single-bathroom layout against their needs.
3 bedroom detached house for sale in Trem Dyffryn, Red Bank, Welshpool, SY21 — £290,000 • 3 bed • 1 bath • 1069 ft²
2 bedroom end of terrace house for sale in Glan Lledan, Brook Street, Welshpool, Powys, SY21 — £200,000 • 2 bed • 2 bath • 846 ft²
3 bedroom semi-detached house for sale in Erw Wen, Welshpool, Powys, SY21 — £265,000 • 3 bed • 2 bath • 1125 ft²
3 bedroom detached house for sale in Lon Maldwyn, Llansantffraid, SY22 — £279,950 • 3 bed • 2 bath • 1072 ft²
2 bedroom semi-detached house for sale in Gungrog Hill, Welshpool, Powys, SY21 — £175,000 • 2 bed • 1 bath • 612 ft²
2 bedroom terraced house for sale in Coed Y Bryn, Welshpool, SY21 — £145,000 • 2 bed • 1 bath • 742 ft²


























































































