**Standout Features:**
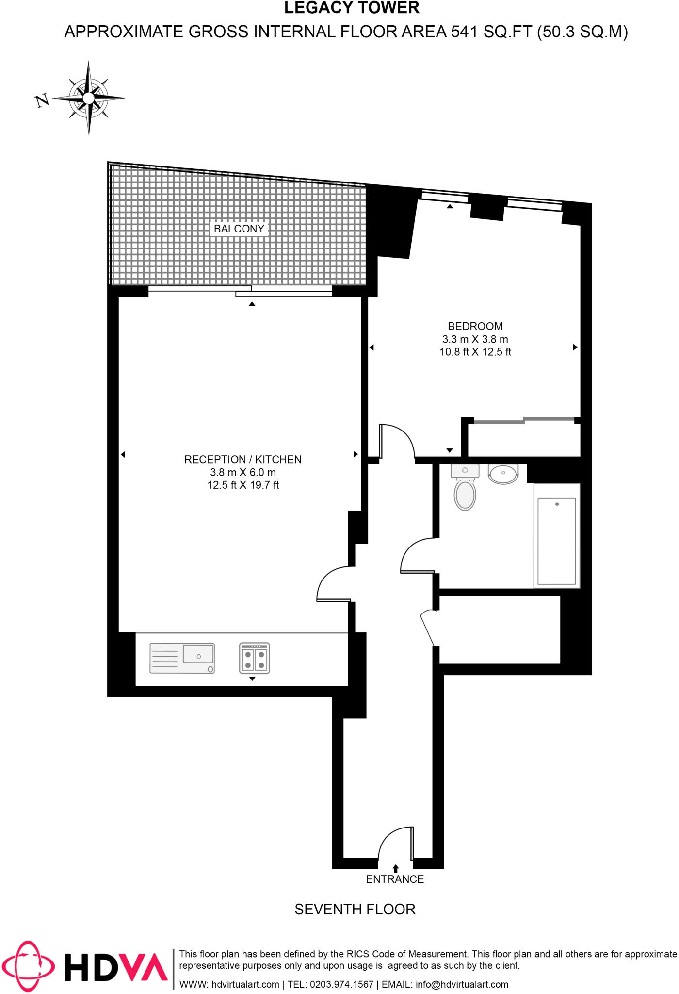
- 1 bedroom, 1 bathroom apartment on the 7th floor with lift access
- Approx. 541 sq. ft (50.3 sq. m)
- East-facing balcony with city views
- Modern kitchen with integrated SMEG appliances
- Residents-only gym and 24-hour concierge service
- 500 ft from Stratford Underground Station
- EPC Rating B and excellent mobile & broadband coverage
**Summary:**
Discover this stylish one-bedroom apartment in the prestigious Legacy Tower, perfectly positioned for the hustle and bustle of urban life in London’s dynamic Stratford area. Spanning approximately 541 sq. ft, this apartment boasts an inviting open-plan design with a modern kitchen featuring sleek SMEG appliances and a spacious living area filled with natural light from floor-to-ceiling windows. Step out onto your private east-facing balcony and soak in the vibrant city views each morning.
Residents benefit from superb amenities including a fully equipped gym and 24-hour concierge service. Enjoy the convenience of Stratford Station at just 500 feet away, providing seamless connections to the City and beyond. With a long lease of 239 years, reasonable service charges, and council tax band C, this property is ideal for first-time buyers, professionals, or investors seeking a lucrative rental opportunity in a rapidly growing area.
Take advantage of this exclusive opportunity in a thriving community close to shopping, dining, and entertainment venues - this apartment won’t be available for long!
1 bedroom apartment for sale in Legacy Tower, Great Eastern Road, London, E15 — £475,000 • 1 bed • 1 bath • 541 ft²
1 bedroom apartment for sale in Legacy Tower, Great Eastern Road, London E15 — £450,000 • 1 bed • 1 bath • 685 ft²
2 bedroom apartment for sale in Legacy Tower, Great Eastern Road, London, E15 — £635,000 • 2 bed • 2 bath • 917 ft²
2 bedroom apartment for sale in Legacy Tower, Great Eastern Road, London, E15 — £550,000 • 2 bed • 2 bath • 895 ft²
1 bedroom apartment for sale in Legacy Tower, Great Eastern Road, London, E15 — £450,000 • 1 bed • 1 bath • 487 ft²
2 bedroom apartment for sale in Legacy Tower, Great Eastern Road, London, E15 — £572,500 • 2 bed • 2 bath • 865 ft²


























































































