**Standout Features:**
- Terraced, mid-20th century property
- Newly renovated with modern utilities
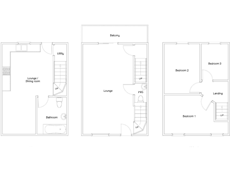
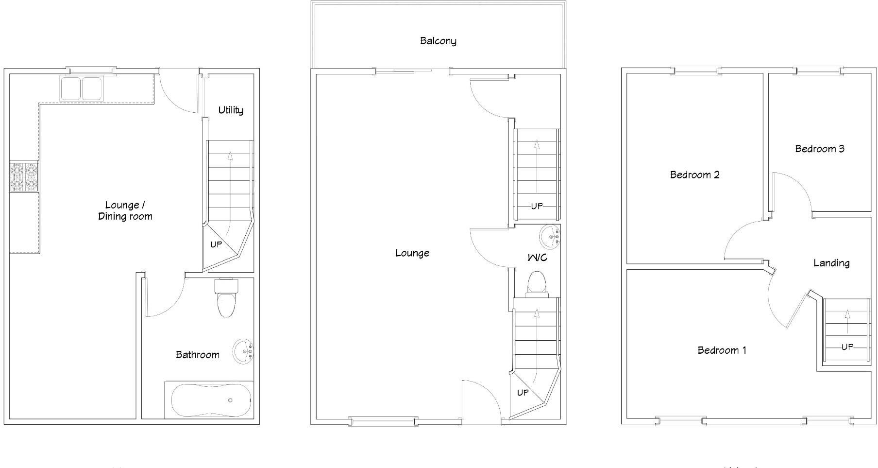
- 3 bedrooms, 2 bathrooms
- Spacious open-plan kitchen/dining area
- Comfortable lounge/dining room with balcony
- Rear garden perfect for relaxation
- Chain-free sale
**Notable Concerns:**
- Located in a deprived area with high crime rates
- Small plot size and average broadband speeds
- Parking may be limited in the area
This charming, newly renovated terraced house is an excellent opportunity for first-time buyers or families seeking a comfortable and modern home. Boasting 1,085 square feet, the property features three well-sized bedrooms and two stylish bathrooms, all wrapped in a light and airy interior with neutral décor. The open-plan kitchen/dining area, complete with modern appliances and access to a rear garden, invites cozy family gatherings, while the spacious lounge offers a perfect retreat enhanced by a lovely balcony showcasing beautiful views.
Although situated in an area classified as deprived, this chain-free property offers immediate move-in appeal with high-quality finishing touches throughout. Enjoy the convenience of local amenities and excellent transport links, with nearby schools and stunning rural walks just a stone's throw away. With a perfect blend of modern living and future potential, this home is not to be missed—especially for those looking to embrace the rewards of homeownership. Act quickly; opportunities like this won't last long!
3 bedroom terraced house for sale in Church Street, Blaina, NP13 — £115,000 • 3 bed • 1 bath • 718 ft²
3 bedroom end of terrace house for sale in Dylan Avenue, Cefn Fforest, NP12 — £219,995 • 3 bed • 2 bath • 1055 ft²
3 bedroom house for sale in Greenfield Street, New Tredegar, NP24 — £155,000 • 3 bed • 1 bath • 786 ft²
3 bedroom terraced house for sale in Chapel Street, Aberbargoed, CF81 — £129,000 • 3 bed • 1 bath • 873 ft²
3 bedroom semi-detached house for sale in Portland Street, Abertillery, Gwent, Blaenau Gwent, NP13 — £104,995 • 3 bed • 1 bath • 991 ft²
3 bedroom terraced house for sale in Fflorens Road, Newbridge, NP11 — £229,995 • 3 bed • 2 bath • 905 ft²






























































































