**Standout Features:**
- Luxury first-floor flat with lift access
- South-facing balcony
- Open-plan living area with high-end finishes
- Two spacious double bedrooms, master with en-suite
- Two private off-street parking spaces
- Energy Performance Rating of B
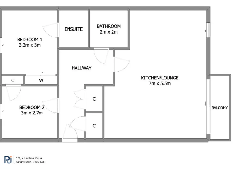
This stunning luxury flat in postcode G66 1AU represents an exceptional opportunity for both families and investors seeking modern living in a sought-after area. Enjoy the convenience of lift access to this immaculate first-floor residence, which boasts a bright open-plan living space perfect for entertaining and everyday comfort. The generous living area flows seamlessly onto a private, south-facing balcony, providing an ideal outdoor retreat.
The well-designed kitchen features high-end units and integrated appliances, alongside a breakfast bar that enhances the social atmosphere. Both double bedrooms come equipped with built-in wardrobes, and the master contains a stylish en-suite shower room, complemented by a tastefully appointed bathroom. Additional amenities include two dedicated off-street parking spaces and secure bicycle storage.
While the local area has some socio-economic challenges, this modern flat stands out as a luxurious haven with excellent broadband speeds, making it a prime option for remote working. Don’t miss out on this exclusive opportunity—properties like this, with contemporary design and desirable features, tend to go quickly. Envision yourself living here; it’s a perfect blend of comfort, style, and versatility for your future.
2 bedroom flat for sale in Lanfine Drive, Kirkintilloch, G66 — £240,000 • 2 bed • 2 bath • 797 ft²
2 bedroom flat for sale in Jackson Place, Bearsden, Glasgow, East Dunbartonshire, G61 — £205,000 • 2 bed • 2 bath • 904 ft²
3 bedroom flat for sale in 2/11 Churchill Court, 32 Washington Road, Kirkintilloch, Glasgow, G66 — £265,000 • 3 bed • 2 bath • 876 ft²
2 bedroom flat for sale in Newburgh Street, Glasgow, Glasgow City, G43 — £185,000 • 2 bed • 2 bath • 639 ft²
2 bedroom flat for sale in The Riggs, Milngavie, Glasgow, East Dunbartonshire, G62 — £185,000 • 2 bed • 1 bath • 809 ft²
2 bedroom apartment for sale in Southbrae Gardens, Jordanhill, Glasgow, G13 — £269,000 • 2 bed • 2 bath • 957 ft²














































































































