**Standout Features:**
- Immaculately maintained four-bedroom detached villa in Tullibody
- Flexible two-storey layout perfect for modern family living
- Stunning elevated views over Braehead Golf Course
- Multiple en-suite bedrooms and stylish upgraded kitchen
- Private landscaped gardens with timber decking
- Ample parking with large driveway and double garage
- Chain-free and newly renovated
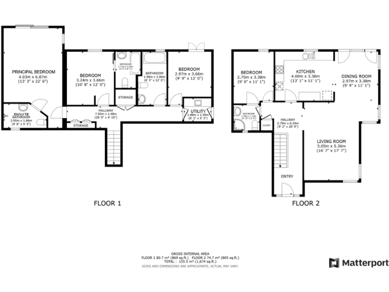
This exquisite four-bedroom detached villa in the highly sought-after Tullibody location is a dream home for families seeking comfort and modern amenities. Impeccably maintained to show home standards, the property boasts a flexible two-storey layout ideal for a contemporary lifestyle. Step inside to find a bright and airy lounge, a sophisticated dining room with balcony access, and a chic, modern kitchen, perfect for entertaining.
The lower ground floor offers an impressive master suite with an en-suite, along with two additional bedrooms featuring en-suite bathrooms, creating the perfect setup for guests or extended family living. This property blends elegant interiors with beautifully landscaped gardens, complete with timber decking for those sunny afternoons.
Enjoy the picturesque views over Braehead Golf Course and ample off-street parking with a spacious double garage, providing both storage and workshop potential. With a desirable location, excellent mobile and broadband connectivity, and close proximity to local amenities and schools, this turn-key family home presents an exceptional opportunity. Don’t miss out—early viewing is strongly recommended to secure this unique property.
5 bedroom detached house for sale in Highlander Way, Tullibody, FK10 — £360,000 • 5 bed • 4 bath • 1256 ft²
4 bedroom detached house for sale in Rose Street, Tullibody, Alloa, Clackmannanshire, FK10 — £270,000 • 4 bed • 3 bath • 1055 ft²
4 bedroom detached house for sale in Marshall Way, Tullibody, FK10 — £280,000 • 4 bed • 4 bath • 1528 ft²
4 bedroom detached house for sale in Stephens Croft, Falkirk, FK2 — £335,000 • 4 bed • 3 bath • 1582 ft²
3 bedroom semi-detached house for sale in 10 Redlands Road, Tullibody FK10 2QH, FK10 — £154,500 • 3 bed • 2 bath • 1240 ft²
2 bedroom semi-detached house for sale in 11 Craigleith View, Tullibody FK10 2TX, FK10 — £126,000 • 2 bed • 1 bath • 733 ft²


































































































































































