Perfect for first-time buyers and small families, with low maintenance and NHBC protection.
Three bedrooms with principal en-suite and family bathroom
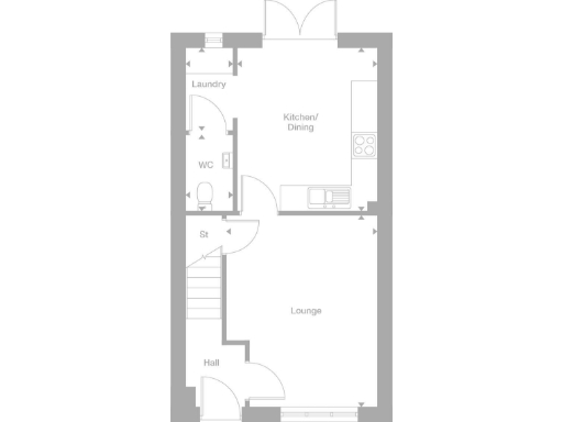
A newly built three-bedroom semi-detached house on The Avenue at City Fields, designed for low-maintenance family living. The layout includes a lounge, kitchen/diner with French doors, separate laundry room, downstairs WC and a principal bedroom with en-suite — practical spaces for everyday life. The property benefits from a 10-year NHBC warranty and off-street parking, helping reduce running costs and offering long-term peace of mind.
At about 558 sq ft, the home is compact and best suited to first-time buyers or small families who prioritise new finishes and energy efficiency over large rooms. Room sizes are modest: the lounge and kitchen/diner are medium-sized and bedrooms are comfortable rather than generous. Service charge is modest at £130.74 per year; council tax band is to be confirmed and there is a £500 reservation fee for pre-booking.
Buyers should note material local factors: the development sits in an area described as deprived with higher-than-average local crime rates. While the neighbourhood offers good nearby schools and convenient amenities, these local conditions may affect resale values and suitability depending on personal priorities.
Overall this is a straightforward new-build proposition: contemporary fixtures, low upkeep and NHBC protection make it an attractive move-in-ready option for first-time buyers seeking affordable, efficient accommodation. Those needing larger living spaces or quieter, lower-crime neighbourhoods should weigh those priorities before viewing.
3 bedroom mews property for sale in Nellie Spindler Drive, Wakefield,
WF3 4LS, WF3 — £269,995 • 3 bed • 1 bath • 596 ft²
3 bedroom semi-detached house for sale in Nellie Spindler Drive, Wakefield,
WF3 4LS, WF3 — £272,995 • 3 bed • 1 bath • 596 ft²
3 bedroom mews property for sale in Nellie Spindler Drive, Wakefield,
WF3 4LS, WF3 — £272,995 • 3 bed • 1 bath • 596 ft²
4 bedroom detached house for sale in Nellie Spindler Drive, Wakefield,
WF3 4LS, WF3 — £414,995 • 4 bed • 1 bath • 927 ft²
4 bedroom detached house for sale in Nellie Spindler Drive, Wakefield,
WF3 4LS, WF3 — £414,995 • 4 bed • 1 bath • 841 ft²
4 bedroom detached house for sale in Nellie Spindler Drive, Wakefield,
WF3 4LS, WF3 — £386,995 • 4 bed • 1 bath • 816 ft²


















































