Light-filled five-bedroom family home with garden, parking and strong local schools.
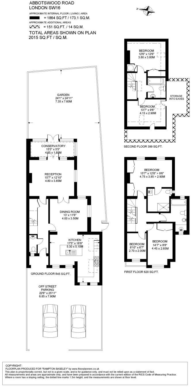
Five bedrooms over three floors with ensuite and family bathrooms
24 ft private rear garden with side access and conservatory light
Off-street parking for multiple cars on a paved driveway
Contemporary kitchen with granite surfaces and integrated appliances
Constructed 1991–95 in Tudor Revival style, not an original period build
Small plot size for the area; limited external space
Council Tax Band F — relatively high local tax costs
Good transport links and highly rated nearby schools
This well-proportioned five-bedroom semi-detached house on Abbotswood Road offers light-filled family living across three floors. The ground floor combines a contemporary kitchen/dining area with a bright reception and conservatory that opens onto a private 24 ft garden, creating a sensible flow for everyday life and entertaining.
Bedrooms are spread across the first and second floors, including an ensuite and built-in wardrobes to some rooms, plus useful eaves storage on the top floor. The property benefits from off-street parking, double glazing, mains gas central heating and comfortable room proportions for a growing family.
Practical considerations are clear and straightforward: the plot is relatively small for the area and council tax is in Band F, which will increase running costs. The house was constructed in the early 1990s in a Tudor Revival style rather than being a historic period build, so character detailing is stylistic rather than original.
Overall this freehold home suits buyers wanting spacious, well-presented family accommodation in an urban location with good transport links to Balham and Streatham Hill, strong local schools and fast broadband. There is some potential to update or reconfigure internal layouts if desired, but the house is ready for immediate occupation.
5 bedroom detached house for sale in House 2 Abbotswood Place, Streatham, SW16 — £1,950,000 • 5 bed • 5 bath • 2142 ft²
5 bedroom semi-detached house for sale in Valleyfield Road, Streatham, SW16 — £1,100,000 • 5 bed • 2 bath • 1760 ft²
4 bedroom terraced house for sale in Pendennis Road, London, SW16 — £995,000 • 4 bed • 2 bath • 1685 ft²
5 bedroom semi-detached house for sale in Westwell Road, Streatham, SW16 — £1,350,000 • 5 bed • 3 bath • 2112 ft²
5 bedroom semi-detached house for sale in Briar Avenue, London, SW16 — £1,150,000 • 5 bed • 2 bath • 2398 ft²
5 bedroom semi-detached house for sale in Hitherfield Road, London, SW16 — £1,400,000 • 5 bed • 2 bath • 2204 ft²


























































