Large gardens, garages and scope to renovate in peaceful St Peters near Broadstairs sea..
- Large freehold plot with long private drive and two garages
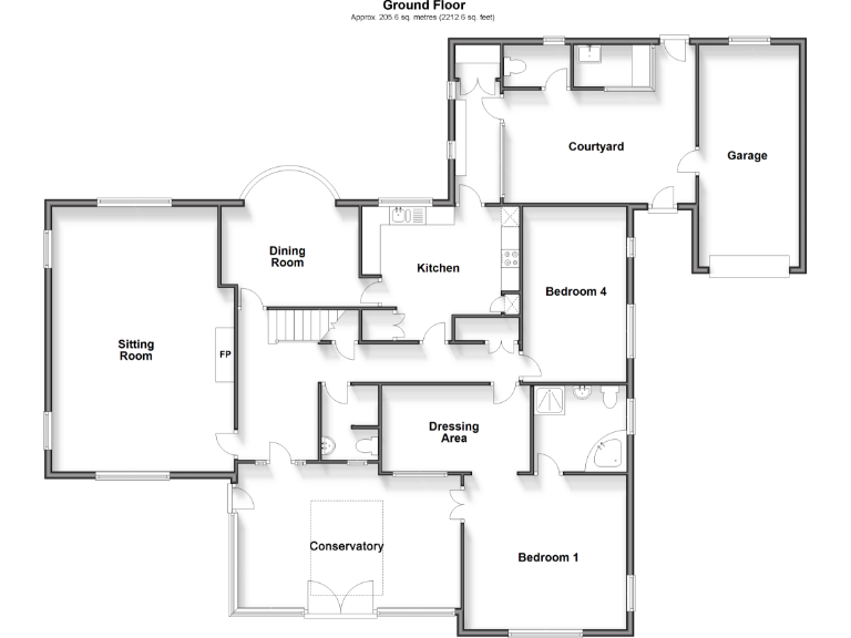
- Spacious ground-floor main suite with en suite and dressing area
- Triple-aspect sitting room with open fire and separate dining bay
- Very large established gardens, summerhouse, workshop and outbuildings
- Upstairs vaulted attic spaces offer playroom/office conversion potential
- Parts require modernisation; mixed condition throughout
- Cavity walls assumed uninsulated; older double glazing (pre-2002)
- Council tax high; local crime levels above average
Set within the historic grounds of St Peter’s vicarage, this distinctive 4-bedroom chalet bungalow offers substantial living space, extensive gardens and clear potential for enhancement. A long private drive leads to parking, two garages and a series of useful outbuildings and workshops that could be adapted to create more accommodation or hobby space. The ground floor plan is generous: a triple-aspect sitting room with open fire and bay-windowed dining room, a well-equipped kitchen with pantry and utility, plus a main ground-floor suite with dressing area and en suite.
The upper floor provides two double bedrooms with partially vaulted ceilings, a family bathroom, large boarded attic storage and a further vaulted attic space suitable for a playroom or home office. Outside, very large, established gardens include lawn, trees, a summerhouse, vegetable area and store sheds — excellent for family life, gardening or entertaining. The property is freehold and in an affluent suburb with good schools, nearby village amenities and easy access to Broadstairs seafront and rail connections to London.
Buyers should note a number of practical points: parts of the house clearly need modernisation and updating, some cavity walls lack insulation (assumed), and the double glazing is older (installed before 2002). Council tax is described as expensive and local crime levels are above average. These factual issues reduce immediate move-in readiness but also underline the value-adding potential for someone willing to invest in sympathetic refurbishment or energy improvements.
4 bedroom detached house for sale in Reading Street, Broadstairs, Kent, CT10 — £750,000 • 4 bed • 1 bath • 2367 ft²
2 bedroom detached house for sale in Castle Road, Whitstable, CT5 — £499,995 • 2 bed • 1 bath • 1323 ft²
3 bedroom bungalow for sale in Crow Hill, Broadstairs, CT10 — £475,000 • 3 bed • 2 bath • 1531 ft²
4 bedroom detached house for sale in Foreland Heights, Broadstairs, Kent, CT10 — £750,000 • 4 bed • 2 bath • 1852 ft²
4 bedroom detached house for sale in London Road, Ramsgate, Kent, CT11 — £750,000 • 4 bed • 1 bath • 1432 ft²
3 bedroom detached house for sale in Bairds Hill, Broadstairs, CT10 — £700,000 • 3 bed • 2 bath • 1894 ft²


























































