Chain-free, newly renovated three-bedroom home with private walled patio and parking.
Three bedrooms with period features and open-plan farmhouse kitchen
Newly renovated; double glazing installed and modern shower room
Walled patio provides private outdoor space, small plot only
Off-street parking for two plus adjoining stone outbuilding for storage
Oil-fired boiler and radiators; higher fuel cost potential
Stone walls likely uninsulated (built before 1900)
Single shower room only; modest overall internal size
Chain free and within Yorkshire Dales National Park
Set in the heart of a scenic Yorkshire Dales village, this newly renovated three-bedroom semi-detached cottage blends period character with modern convenience. Exposed beams, original stone elevations and generous rural views create an immediate sense of history and calm. The living spaces are comfortable rather than vast, arranged across multiple levels to suit family life or a countryside retreat.
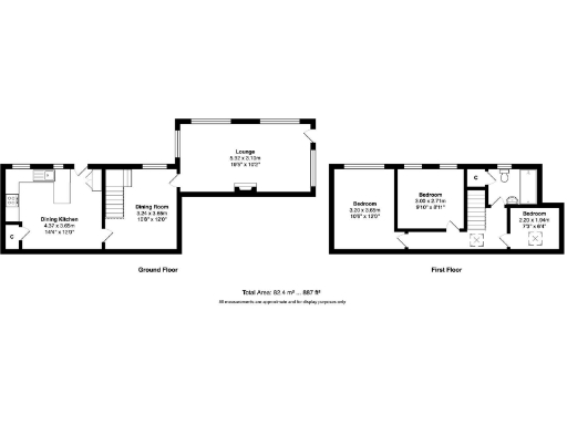
The farmhouse-style kitchen has integrated appliances, pantry storage and plumbing for a washing machine; the extended sitting room with feature fireplace opens to a private walled patio, perfect for alfresco dining. Two double bedrooms occupy the principal rooms upstairs, with a third bedroom suitable as a child’s room or home office. A single, well-appointed shower room serves the house.
Practical benefits include off-street parking for two vehicles on a cobbled forecourt, an adjoining stone outbuilding for secure storage, double glazing and oil-fired boiler with radiators. The property is chain free and located within the Yorkshire Dales National Park, close to village amenities, walks and nearby Grassington.
Buyers should note the plot is small and outdoor space is a walled patio rather than lawn. The cottage’s stone walls are likely uninsulated (original construction pre-1900), and the home is heated by oil rather than gas — important considerations for long-term running costs. Overall the house offers immediate move-in condition after recent works, with modest rooms suitable for those seeking characterful village living rather than a large family estate.
3 bedroom terraced house for sale in Chapel Lane, Hebden, Skipton, North Yorkshire, BD23 — £450,000 • 3 bed • 2 bath • 1295 ft²
4 bedroom semi-detached house for sale in Hebden Road, Grassington, Skipton, North Yorkshire, BD23 — £765,000 • 4 bed • 2 bath • 1848 ft²
3 bedroom terraced house for sale in Gills Fold, Grassington, BD23 — £391,995 • 3 bed • 1 bath • 1010 ft²
2 bedroom terraced house for sale in Main Street, Long Preston, Skipton, North Yorkshire, BD23 — £225,000 • 2 bed • 2 bath • 807 ft²
4 bedroom detached house for sale in The Cottage, Hawkswick, Skipton, BD23 — £900,000 • 4 bed • 5 bath • 1105 ft²
3 bedroom terraced house for sale in Pudsey Terrace, Low Laithe, HG3 — £300,000 • 3 bed • 2 bath • 1176 ft²






































































































