Single-storey, low-maintenance home ideal for downsizers close to village amenities.
No upward chain — ready for prompt completion
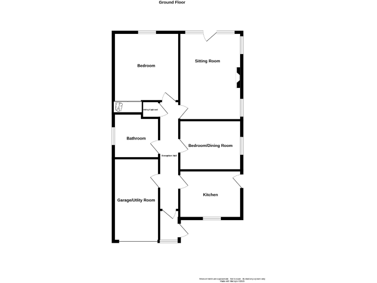
Set in a quiet residential close within easy reach of Wollaston village, this two-bedroom detached bungalow offers straightforward single-storey living with no upward chain. The layout is conventional and practical: porch, long reception hall, large sitting room with garden access, breakfast kitchen, two double bedrooms and a modern bathroom. There is drive parking, an integral garage and a tidy, enclosed rear garden — all on a decent plot.
The property will suit downsizers or those seeking retirement living who prioritise convenience and low-mobility access. Gas central heating, double glazing and an EPC rating of C provide reasonable energy performance. Local amenities, good primary and secondary schools nearby, low local crime and fast broadband make the location convenient for everyday needs and visitors.
Constructed in the mid-20th century, the bungalow is freehold and presented in largely sound condition, but buyers should expect cosmetic updating to personalise the interior. The second bedroom is currently used as a dining room, offering flexible use of space. The garage provides useful storage but the property’s size is described as average — it won’t suit buyers needing large family accommodation.
Overall, the combination of chain-free sale, single-storey convenience and village proximity gives immediate practical appeal. Buyers seeking a low-maintenance, well-located home to adapt or refresh will find clear potential here.
2 bedroom detached bungalow for sale in Wolverley Avenue, Stourbridge, DY8 — £360,000 • 2 bed • 1 bath • 997 ft²
2 bedroom detached bungalow for sale in Twickenham Court, Stourbridge, DY8 4QG, DY8 — £425,000 • 2 bed • 1 bath • 616 ft²
2 bedroom bungalow for sale in Moule Close, Kidderminster, Worcestershire, DY11 — £350,000 • 2 bed • 2 bath • 1084 ft²
2 bedroom detached bungalow for sale in Thornleigh, DY3 — £250,000 • 2 bed • 1 bath • 797 ft²
2 bedroom detached bungalow for sale in Moss Grove, Kingswinford, DY6 9ER, DY6 — £274,950 • 2 bed • 1 bath • 635 ft²
2 bedroom detached house for sale in Twickenham Court, Stourbridge, DY8 4QG, DY8 — £495,000 • 2 bed • 1 bath • 960 ft²










































