Spacious new-build family home with large garden and gated parking.
Built 2024 with 10-year building warranty
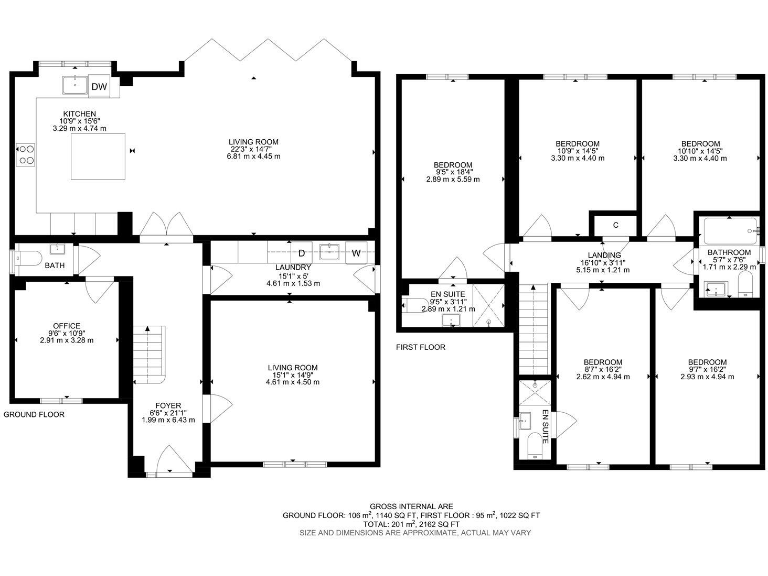
Finished in 2024, this detached five-bedroom house sits on a very large plot in quiet Mott Street. The home centres on a generous open-plan kitchen/living/dining area with bi-folding doors to the garden, plus two reception rooms and a separate study — ideal for family living and home working. Modern comforts include underfloor heating on the ground floor, a built-in sound system, and an EV charger at the double carport. A 10-year building warranty provides added peace of mind.
The layout suits families who need space and flexibility: five bedrooms with two en-suites and a family bathroom, a utility room off the kitchen, off-street parking behind gates and convenient side access to the rear garden. At 2,162 sq ft overall, the house offers room for growing children, guests and occasional home working without feeling cramped.
Buyers should note a few practical considerations. The property sits in a hamlet classification with limited local services and an ageing local population profile; the area has a higher crime level and is flagged as deprived, and council tax is described as quite expensive. The listed main heating sources include room heaters and wood logs despite underfloor heating on the ground floor — confirm full heating specification and running costs during viewing.
This is a new-build family home with strong indoor-outdoor flow and modern fittings, best for buyers wanting contemporary space, off-street parking and a large private garden. Fast broadband supports remote working; mobile signal is average, so check coverage for your devices before committing.
5 bedroom detached house for sale in Aspen Lodge, Mott Street, High Beach, E4 — £1,345,000 • 5 bed • 3 bath • 2477 ft²
5 bedroom detached house for sale in Mott Street, Sewardstonebury, E4 — £1,425,000 • 5 bed • 4 bath • 2367 ft²
5 bedroom detached house for sale in Cedar Lodge, Mott Street, High Beach, E4 — £1,395,000 • 5 bed • 4 bath • 2367 ft²
4 bedroom house for sale in Pino Way, Kings Head Hill, Chingford, E4 — £749,000 • 4 bed • 3 bath • 1446 ft²
4 bedroom terraced house for sale in Boyles Court, Dark Lane, Great Warley, Brentwood, CM14 — £995,000 • 4 bed • 4 bath • 1686 ft²
5 bedroom detached house for sale in Mott Street, Loughton, IG10 — £1,500,000 • 5 bed • 5 bath • 3242 ft²


































































































