- Private entrance and allocated off-street parking
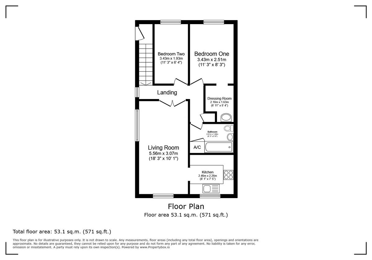
- Two double bedrooms; primary includes dressing area
- Chain free sale, suitable for first-time buyers or investors
- Compact size ~571 sq ft; efficient but limited living space
- Lease 88 years remaining; service charge ~£1,625 pa
- Electric storage heaters; EPC rating C
- Some dated interior; cosmetic updating likely required
- Local crime levels reported as very high — consider security
A chain-free, two-bedroom flat with its own private entrance and allocated parking, set within communal gardens. The layout suits first-time buyers or buy-to-let purchasers seeking a compact, well-located home with straightforward access to transport links and local amenities.
The property offers two double bedrooms (primary with a dressing area), a fitted kitchen and a combined living/dining room. At about 571 sq ft, the apartment feels efficient rather than spacious; buyers should expect a modest footprint but practical rooms and a usable communal outdoor space.
Notable running costs and constraints are clear: the lease has 88 years remaining, service charge is approximately £1,625 per year (buildings insurance included) and ground rent is to be confirmed. Heating is by electric storage and room heaters and the EPC is C. The interior shows some dated elements and may benefit from cosmetic updating.
Location strengths include fast broadband and excellent mobile signal, easy road links (A2/M2/M25), and nearby stations including Ebbsfleet International for high-speed rail. Crime levels in the immediate area are very high — buyers should factor safety measures and local context into their decision.











































