Contemporary four-bedroom family property with balcony and garage.
Elevated plot with direct estuary views from upstairs living and balcony
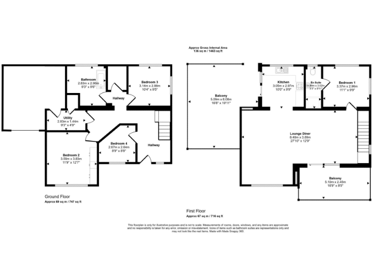
Set on an elevated plot on Beach Road, this contemporary four-bedroom detached house makes the most of direct estuary views from its first-floor living space and balcony. The upside-down layout places an open-plan kitchen, dining and living area upstairs to capture the water outlook; a ground floor provides three bedrooms, a separate WC and a utility giving internal access to the garage.
The property is presented in modern decorative order and benefits from an integral garage, driveway parking for two to three cars and a decking area off the kitchen that leads to an elevated garden. There is clear scope to add value by landscaping the currently overgrown garden and completing the bathroom renovation noted in the specification.
Practical points: the home is freehold with mains gas central heating, double glazing and an EPC rating of C. Local factors include slow broadband, above-average local crime and a higher council tax band, reflecting the wider area profile; there is no flood risk. This house will suit families seeking seaside living, buyers wanting a holiday rental, or investors looking for a property with renovation and rental potential.
4 bedroom detached house for sale in Ocean Way, Pennar, Pembrokeshire, SA72 — £580,000 • 4 bed • 4 bath • 3200 ft²
4 bedroom house for sale in St. Patricks Hill, Llanreath, Pembroke Dock, Pembrokeshire, SA72 — £310,000 • 4 bed • 3 bath • 1541 ft²
3 bedroom semi-detached house for sale in Llanreath, SA72 — £230,000 • 3 bed • 2 bath • 1393 ft²
3 bedroom detached house for sale in The Rath, Milford Haven, Pembrokeshire, SA73 — £240,000 • 3 bed • 1 bath • 1308 ft²
4 bedroom detached house for sale in Burton, SA73 — £650,000 • 4 bed • 3 bath • 2738 ft²
5 bedroom detached house for sale in Beach Road, Llanreath, Pembroke Dock, SA72 — £650,000 • 5 bed • 3 bath • 2754 ft²






























































































