Refurbished three-bedroom house with garden and parking, ready for family life.
Finished to a high standard throughout, ready to move in
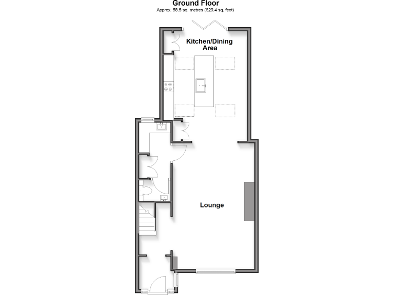
Open-plan kitchen/dining with bi-fold doors and abundant natural light
Private, secure rear garden with direct access from kitchen
Off-street parking for one vehicle
Planning consent granted for loft conversion (works required to complete)
Single family bathroom; three modest-sized bedrooms
Offered Freehold and chain free
Virtual stager images show styling potential only; verify appliances
This recently refurbished three-bedroom terraced home on Loose Road offers a move-in ready layout for growing families. The open-plan kitchen/dining room is bright and spacious, with bi-fold doors and skylights that connect easily to the private, secure rear garden—ideal for weekend entertaining and safe outdoor play.
Practical features include off-street parking, a separate utility and cloakroom, and good local schooling within walking distance, including the sought-after Loose Primary School. The property sits in an affluent, low-crime area with fast broadband and excellent mobile signal, supporting both family life and home working.
Planning consent has already been granted for a loft conversion, giving clear potential to add further living space subject to undertaking the approved works. Note there is a single family bathroom and three modest bedrooms, so the loft conversion would be the main route to increase capacity. Virtual stager images show styling potential only; remaining fittings and appliances should be independently checked.
Offered with no forward chain and Freehold tenure, this home suits buyers seeking a comfortable, modern family house with scope to extend. The finish is high quality throughout, but purchasers should confirm fixtures, services and any construction consents with their solicitor prior to exchange.
 3 bedroom semi-detached house for sale in Berwyn Grove, Loose, Maidstone, Kent, ME15 — £475,000 • 3 bed • 1 bath • 926 ft²
 3 bedroom semi-detached house for sale in Berwyn Grove, Loose, Maidstone, Kent, ME15 — £475,000 • 3 bed • 1 bath • 926 ft² 2 bedroom terraced house for sale in Mayfair Avenue, Loose, Maidstone, Kent, ME15 — £300,000 • 2 bed • 1 bath • 657 ft²
 2 bedroom terraced house for sale in Mayfair Avenue, Loose, Maidstone, Kent, ME15 — £300,000 • 2 bed • 1 bath • 657 ft² 4 bedroom semi-detached house for sale in Berwyn Grove, Loose, Maidstone, Kent, ME15 — £525,000 • 4 bed • 1 bath • 1324 ft²
 4 bedroom semi-detached house for sale in Berwyn Grove, Loose, Maidstone, Kent, ME15 — £525,000 • 4 bed • 1 bath • 1324 ft² 3 bedroom terraced house for sale in Loose Road, Maidstone, Kent, ME15 — £350,000 • 3 bed • 1 bath • 1034 ft²
 3 bedroom terraced house for sale in Loose Road, Maidstone, Kent, ME15 — £350,000 • 3 bed • 1 bath • 1034 ft² 4 bedroom detached house for sale in Copper Tree Court, Loose, Maidstone, Kent, ME15 — £625,000 • 4 bed • 3 bath • 1511 ft²
 4 bedroom detached house for sale in Copper Tree Court, Loose, Maidstone, Kent, ME15 — £625,000 • 4 bed • 3 bath • 1511 ft² 3 bedroom detached house for sale in Norrington Road, Maidstone, Kent, ME15 — £490,000 • 3 bed • 1 bath • 1055 ft²
 3 bedroom detached house for sale in Norrington Road, Maidstone, Kent, ME15 — £490,000 • 3 bed • 1 bath • 1055 ft²






































































