**Standout Features:**
- Prominent corner location in Maidenhead town center
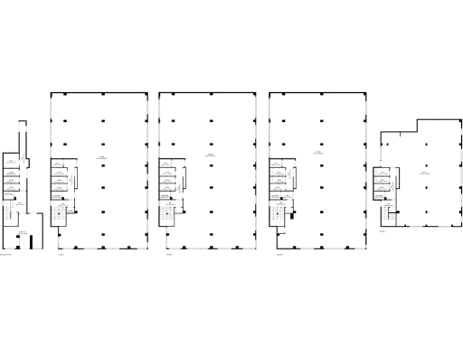
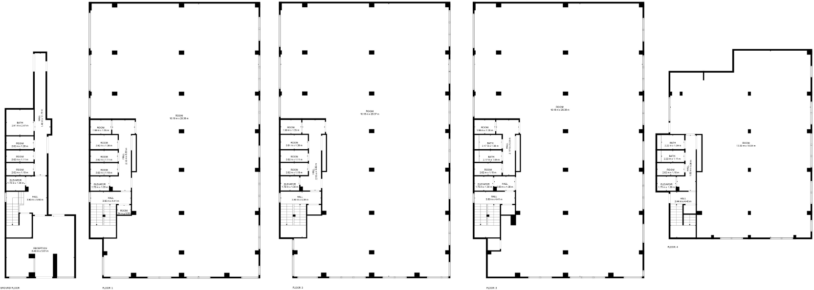
- Freehold commercial property with total GIA of 19,723 sq ft
- Stable tenant lease with established Chartered Surveyors until February 2030
- Permitted development rights for conversion into 30 residential flats
- Excellent transport links; 0.3 miles to Maidenhead Rail Station with direct London services
- Vibrant mixed-use neighborhood with extensive amenities within walking distance
**Potential Concerns:**
- Mortgage lenders may refuse financing due to only 7 years left on the lease
- High crime rate in the local area may deter some investors
---
Discover a commercial development opportunity at Chatsworth House, 29 Broadway, situated in a prime corner location of Maidenhead. Spanning 19,723 sq ft, this freehold property features a currently leased ground floor occupied by a well-regarded Chartered Surveyors firm, providing reliable income through February 2030. The potential for significant growth is underscored by existing plans for converting the upper floors into 30 modern residential flats, capitalizing on the increasing demand for housing.
Nestled within a vibrant mixed-use neighborhood, this property boasts excellent accessibility with a quick walking distance to busy retail hubs and Maidenhead Rail Station, ensuring direct transport to London. However, potential buyers should note the current mortgage conundrum with the remaining lease term. With diverse business and living amenities just steps away, this development presents an alluring prospect for seasoned investors or those looking to maximize property value in a thriving urban setting. Don’t miss out on a potentially lucrative investment in a rapidly growing area!
Office for sale in Chatsworth House, 29 Broadway, Maidenhead, Berkshire, SL6 — £1,300,000 • 1 bed • 1 bath
Commercial development for sale in Market Place, Chalfont St Peter, Gerrards Cross, SL9 — £550,000 • 2 bed • 2 bath • 1884 ft²
Commercial development for sale in PROPERTY INVESTMENT COMPANY, Middlesex, HA1 — POA • 1 bed • 1 bath
Commercial property for sale in Blandy House and Shops, King Street, and Flats 1 to 3, Nicholson Lane, Maidenhead, SL6 1DZ, SL6 — £2,185,000 • 11 bed • 1 bath • 546 ft²
High street retail property for sale in High Street, West Drayton, Middlesex, UB7 — £625,000 • 1 bed • 1 bath • 1590 ft²
Industrial park for sale in Units 1 - 4 Bell Business Centre, Bell Street, Maidenhead, SL6 1HX, SL6 — £3,000,000 • 1 bed • 1 bath • 15045 ft²






















