Spacious rural bungalow with generous parking, garage and flexible living.
Large gated plot with manicured gardens and panoramic countryside views
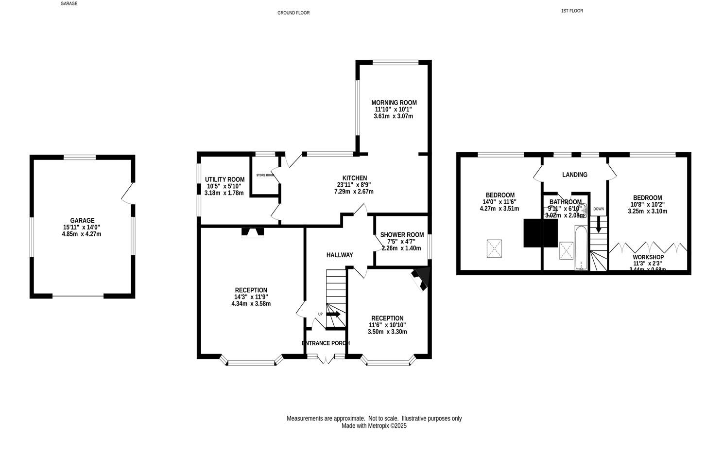
Set in a large, gated plot on the edge of Combs, Lloran Lodge is an extended detached dormer bungalow that brings countryside views and practical family living together. The ground floor provides flexible living with two reception rooms, a fitted dining kitchen open to a garden room, a ground-floor bedroom or second sitting room, plus a shower room and useful utility and store rooms. Upstairs are two double bedrooms and a family bathroom.
The gardens are a standout feature: mature, manicured and extending to front, side and rear with a sun terrace and wide, panoramic outlooks. The gated driveway offers plentiful parking for numerous cars and leads to a detached garage — convenient for multi-car households or hobbyists. The village location sits close to Chapel-en-le-Frith and Whaley Bridge for shops, cafes and commuter links, while still feeling rural and peaceful.
Practical points to note: the house was constructed in the mid 20th century and benefits from filled cavity walls and double glazing installed before 2002, but some internal areas show dated finishes and would benefit from updating. Heating is oil-fired via boiler and radiators — suitable for rural areas but with higher running and servicing considerations. The property is freehold with moderate council tax and no flood risk.
This bungalow will suit buyers wanting generous outside space, countryside vistas and flexible single-level living with additional bedrooms upstairs. It also has scope for cosmetic improvement or modernization to match contemporary tastes and heating preferences.
3 bedroom detached house for sale in Ridge Lane, Combs, High Peak, SK23 — £775,000 • 3 bed • 2 bath • 1604 ft²
4 bedroom bungalow for sale in Dark Lane, MACCLESFIELD, Cheshire, SK11 — £675,000 • 4 bed • 1 bath • 1430 ft²
3 bedroom detached bungalow for sale in Whitehough, Chinley, SK23 — £685,000 • 3 bed • 2 bath • 1679 ft²
4 bedroom semi-detached house for sale in Combs Road, Chapel-En-Le-Frith, SK23 — £695,000 • 4 bed • 2 bath • 2067 ft²
4 bedroom detached house for sale in Allstone Lea, Combs, High Peak, SK23 — £760,000 • 4 bed • 3 bath • 1370 ft²
5 bedroom detached bungalow for sale in Woodseats Lane, Charlesworth, Glossop, Derbyshire, SK13 — £799,950 • 5 bed • 2 bath • 3400 ft²










































































