**Standout Features:**
- Immaculately presented two-bedroom semi-detached home
- Luxury Karndean flooring and remote-controlled blackout blinds
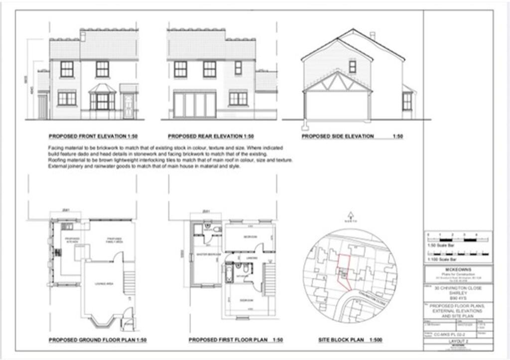
- Pre-approved planning permission to convert into a three-bedroom property
- Spacious open-plan kitchen diner with bi-fold doors leading to a private garden
- Driveway parking for two vehicles
- Peaceful cul-de-sac location in the sought-after Monkspath area
**Summary:**
Discover this beautifully refurbished two-bedroom semi-detached home in the desirable Monkspath area of B90. This exceptional property combines stylish modern design with everyday comfort, boasting luxurious Karndean flooring and remote-controlled blackout blinds throughout. The open-plan kitchen diner serves as the heart of the home, featuring integrated appliances and bi-fold doors that seamlessly connect to a tranquil, well-maintained garden—perfect for entertaining or relaxing.
Upstairs, you’ll find two generous double bedrooms, with the option to convert into a three-bedroom layout, thanks to pre-approved planning permission. Additionally, a sleek family bathroom completes the upstairs space. Outside, enjoy the privacy of a garden bordered by mature shrubs and a charming summer house ideal for a home office or retreat, complemented by convenient driveway parking for two vehicles.
Set in a quiet cul-de-sac lined with amenities and excellent local schools, this property is perfect for first-time buyers, families, or investors looking for a stylish, low-maintenance living space in an affluent area. With a unique blend of modern comforts and future potential, this captivating home is sure to attract immediate interest. Don’t miss your chance to claim this rare gem in a prime location!
2 bedroom semi-detached house for sale in Highdown Crescent, Shirley, B90 — £315,000 • 2 bed • 1 bath • 713 ft²
2 bedroom semi-detached house for sale in Tilesford Close, Shirley, Solihull, West Midlands, B90 — £350,000 • 2 bed • 1 bath • 818 ft²
4 bedroom detached house for sale in Chivington Close, Monkspath, B90 — £550,000 • 4 bed • 2 bath • 1185 ft²
2 bedroom end of terrace house for sale in Kerswell Drive, Shirley, Solihull, B90 — £300,000 • 2 bed • 1 bath • 490 ft²
3 bedroom semi-detached house for sale in Chivington Close, Solihull, B90 — £400,000 • 3 bed • 1 bath • 708 ft²
1 bedroom semi-detached house for sale in Kerswell Drive, Shirley, Solihull, B90 — £220,000 • 1 bed • 1 bath • 484 ft²














































































