BB4 9PG - 3 bedroom end of terrace house for sale in Burnley Road Eas…

View on Property Piper

3 bedroom end of terrace house for sale in Burnley Road East, Rossendale, BB4

Summary - 721 BURNLEY ROAD EAST ROSSENDALE BB4 9PG

3 bed 3 bath End of Terrace

Period character, flexible four-floor layout and detached garage with EV charger.
Overlooks a babbling brook with countryside views
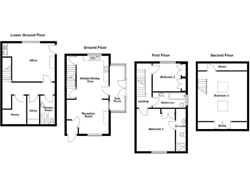
Set over four floors and overlooking a babbling brook, this spacious end-terrace combines period character with practical family space. The ground floor offers a generous open-plan living/dining kitchen with a rustic stone fireplace, while the first floor provides two good-sized bedrooms and a newly fitted en suite to the main bedroom.

A large attic room on the second floor creates a private third bedroom or hobby space with plenty of natural light. The lower ground floor delivers flexible utility areas: a basement office/showroom, utility, shower room and useful storage — ideal for home working or multi-generational living. Outside, a paved side garden, decking and countryside views give a relaxing backdrop.

Practical features include a detached garage with EV charging point and a double driveway. The property is freehold, in council tax band B, has fast broadband and excellent mobile signal, and lies close to well-regarded primary schools and local amenities in Rossendale.

Buyers should note some clear drawbacks: the EPC is rated D and the original stone walls are assumed to lack cavity insulation, so energy improvements may be needed. The plot is modest in size and the multi-storey layout may not suit those seeking single-level living. A partial garden-room conversion is plumbed for a bathroom but requires completion if that extra space is required.

Property Details

Brochure Descriptions

Image Descriptions

Floorplan Description

Rooms

Textual Property Features

Target Audience

AI Tags

Detected Visual Features

EPC Details

Nearby Schools

Nearest Bars And Restaurants

,,,,}

Nearest General Shops

,,}

Nearest Grocery shops

,,}

Nearest Supermarkets

,,}

Nearest Religious buildings

,,}

Nearest Medical buildings

,,,}

Nearest Leisure Facilities

,,,,}

Nearest Tourist attractions

,,}

Nearest Train stations

,,,,}

Nearest Bus stations and stops

,,,,}

Nearest Hotels

,,}

Tags

Local Market Stats

Similar Properties

Meta

High Res Images

Compatible Images

Low res Images

Thumbnails

Raw Images

High Res Floorplan Images

Compatible Floorplan Images

Low res Floorplan Images

FloorplanImages Thumbnail

Raw Floorplan Images