Large period home with south‑west garden, driveway and loft conversion potential..
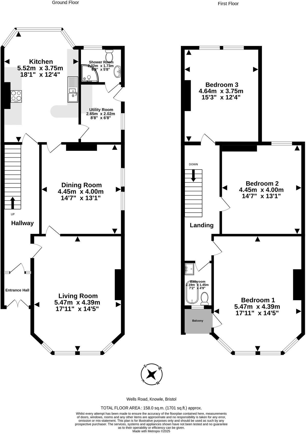
- Approximately 158m² (1,701 sq ft) of spacious period accommodation
- South‑west facing rear garden with patio and lawn
- Driveway parking for two vehicles and side access
- Balcony off the main bedroom and large bay windows
- Large loft with conversion potential subject to consents
- EPC rating D; likely uninsulated stone walls (energy works needed)
- Crime level above average in the local area
- Council tax band D; freehold tenure
This substantial Edwardian semi-detached house on Wells Road combines generous period proportions with useful modern touches. Across approximately 158m² (1,701 sq ft) the home offers three double bedrooms, two bathrooms, a large bay-fronted main reception, and a kitchen with granite worktops and integrated appliances. High ceilings, ornate cornicing and a balcony off the main bedroom emphasise the home's character and scale.
Outdoor space is a strong selling point: a sunny south‑west facing garden, side access and parking for two cars on the driveway make family life straightforward. A large loft provides scope for conversion (subject to consent) to add bedrooms or living space, increasing future value.
Practical considerations are straightforward but important: the property has an EPC rating of D, the original stone walls are likely uninsulated (as built), and the glazing install date is unknown. These factors mean buyers should budget for energy‑efficiency improvements. Crime in the area is above average and the house will suit buyers who value space and character and are comfortable with some retrofit work to improve running costs.
Positioned on a direct route into central Bristol, Wells Road puts city amenities, rail links and several parks within easy reach. For families the property sits near a selection of primary and secondary schools, and local shops, leisure and transport options are close by. Overall, this is a roomy, characterful family home with clear potential to modernise and extend value through targeted upgrades.
5 bedroom semi-detached house for sale in Wells Road, Knowle, Bristol, BS4 — £725,000 • 5 bed • 2 bath • 1841 ft²
4 bedroom terraced house for sale in Wells Road, Bristol, BS4 — £575,000 • 4 bed • 1 bath • 1665 ft²
4 bedroom terraced house for sale in Wells Road, Knowle, BS4 — £600,000 • 4 bed • 2 bath • 1485 ft²
4 bedroom terraced house for sale in Hengrove Road, Knowle, BS4 — £650,000 • 4 bed • 2 bath • 1670 ft²
5 bedroom terraced house for sale in Harrowdene Road, Knowle, BS4 — £625,000 • 5 bed • 3 bath • 1520 ft²
3 bedroom semi-detached house for sale in Cleeve Road, Knowle, BS4 — £525,000 • 3 bed • 1 bath • 1151 ft²






















































































































