Large town‑centre asset with character and mixed‑use potential subject to planning.
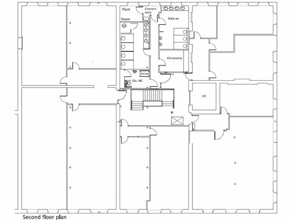
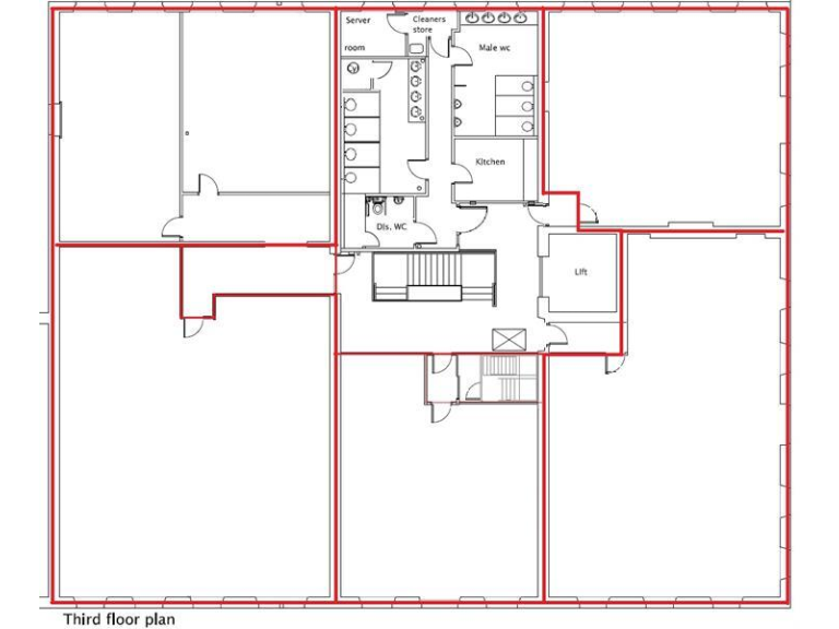
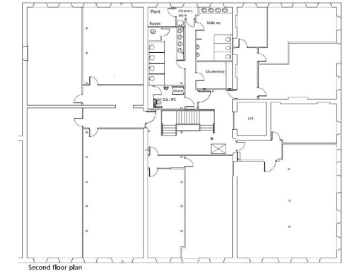
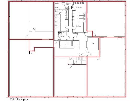
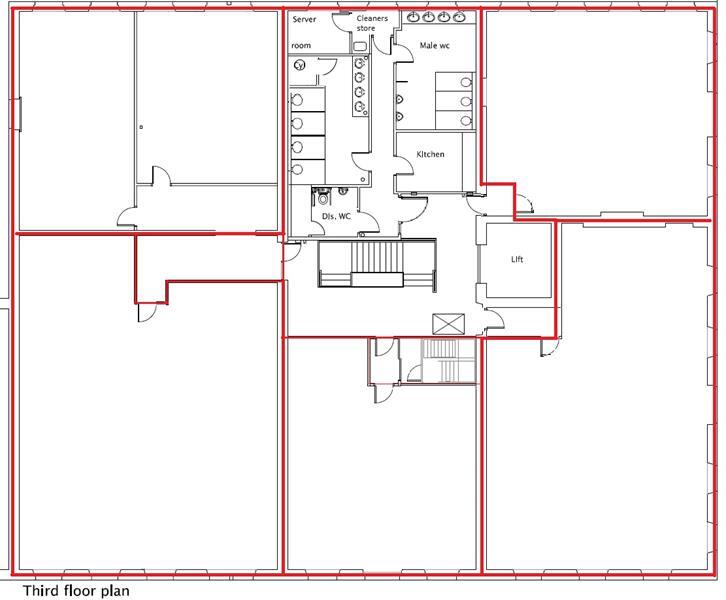
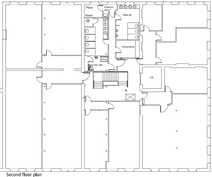
Extremely large historic mill across four floors, circa 23,775 sq ft
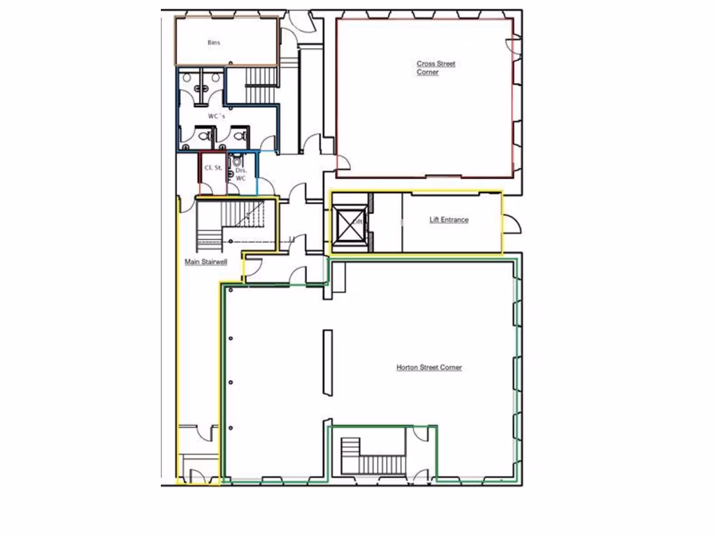
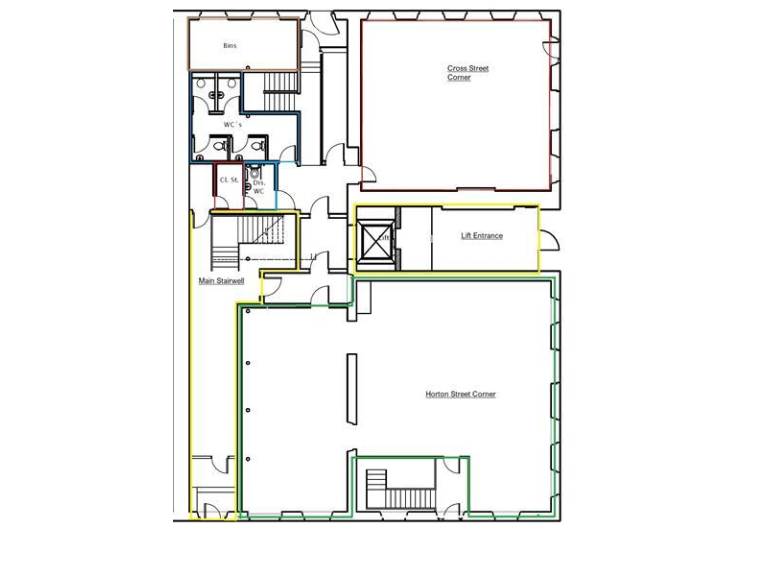
An imposing grade‑seeming former mill, Piece Mill offers exceptionally large, characterful accommodation across four floors directly adjacent to The Piece Hall. Recently renovated, the building retains exposed beams, cast‑iron columns and stone walls while providing modern comforts including LED lighting, air‑conditioning, a passenger lift and kitchen/WC facilities.
The property is currently part‑let at lower and ground floors and benefits from Use Class E consent, presenting a ready investment holding with upside for alternative uses subject to planning. The vast floor area and open-plan loft-style offices suit multiple occupiers or a conversion scheme (STPP) into a mix of commercial or other uses.
Practical points: mains electricity, water and drainage are present but untested; tenure is unspecified. The site sits in a busy, central location with excellent mobile signal and average broadband, but the surrounding area shows very high crime rates and significant deprivation — factors investors should weigh for tenancy strategies and insurance.
Overall this is a rare, large-scale central Halifax opportunity for an investor or developer who values historic character, flexible planning potential and visible town-centre positioning. Full due diligence recommended on services, tenure details and planning possibilities before purchase.
Office for sale in 24, Clare Road, Halifax, HX1 — £260,000 • 1 bed • 1 bath • 3968 ft²
2 bedroom penthouse for sale in Pellon Lane, Halifax, HX1 — £75,000 • 2 bed • 1 bath • 561 ft²
1 bedroom flat for sale in Pellon Lane, Halifax, HX1 — £55,000 • 1 bed • 1 bath • 484 ft²
Light industrial facility for sale in Lambert Street Works, Lambert Street, Greetland, Halifax, West Yorkshire, HX4 8AA, HX4 — £675,000 • 1 bed • 1 bath • 8453 ft²
1 bedroom flat for sale in Pellon Lane, Halifax, HX1 — £65,000 • 1 bed • 1 bath • 474 ft²
Light industrial facility for sale in Park Road Mills HX5 9HX, Park Road, Elland, HX5 9HX, HX5 — POA • 1 bed • 1 bath






























































