**Standout Features:**
- Spacious 2-level office space: approx. 2,231 sqft
- Off-street parking and excellent road links (M25 & A127)
- Modern amenities: air conditioning, LED lighting, CCTV security system
- Chain-free sale, convenient for quick occupancy
- Potential for medium-sized businesses or rapidly growing companies
**Notable Concerns:**
- Area demographics classified as 'hampered neighborhoods' with average deprivation levels
- High crime rate in the locality
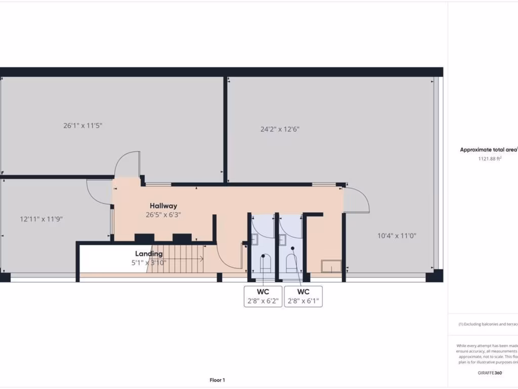
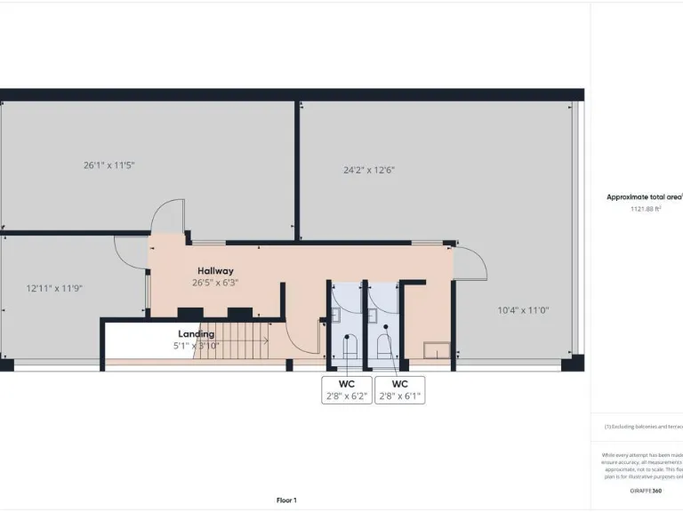
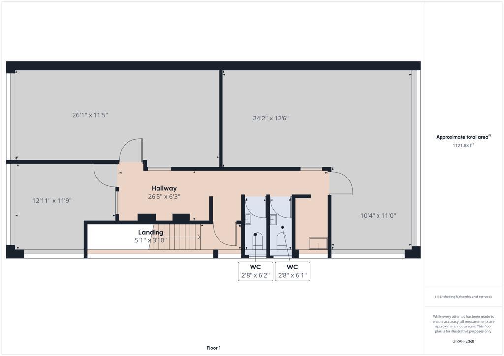
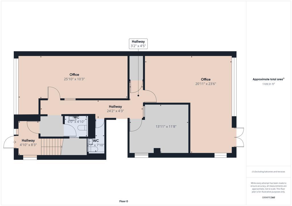
This generously sized office space located in the Capricorn Business Centre in Basildon offers an incredible opportunity for businesses seeking a prime location with ample amenities. Boasting air conditioning, LED lighting, and four W/C facilities, it is designed for functionality, with potential for rapid growth for small to medium enterprises. The office is not only chain-free but also includes off-street parking, and is strategically positioned for quick access to major road links including the M25 and A127.
While the property offers an impressive setup, potential buyers should be aware of the surrounding area's high crime rate and average local deprivation. However, with its robust infrastructure and modern security features, this office space combines both convenience and comfort. Envision your business thriving in this versatile commercial environment, but act quickly—opportunities like this in a well-connected area are rare.
Office for sale in Suite ., 16 Capricorn Centre Cranes Farm Road, Basildon SS14 3JJ, SS14 — £400,000 • 1 bed • 1 bath • 1820 ft²
Light industrial facility for sale in Olympic Business Centre, Paycocke Road, Basildon, Essex, SS14 — £1,200,000 • 1 bed • 1 bath • 7718 ft²
Office for sale in 230 Avenue West, Skyline 120, CM77 — £425,000 • 1 bed • 1 bath • 1820 ft²
Office for sale in Regency House, Miles Gray Road, Basildon, SS14 3FR, SS14 — £7,600,000 • 1 bed • 1 bath • 3571 ft²
Commercial property for sale in 1 Lords Court, Basildon, Essex, SS13 1SS, SS13 — £320,000 • 1 bed • 1 bath • 1623 ft²
Office for sale in Offices At Surface Wharf, Stanhope Industrial Park, Wharf Road, Stanford-Le-Hope, Essex, SS17 — £2,650,000 • 1 bed • 1 bath • 15186 ft²


























































































