Spacious four-bedroom terrace with garden — great Morningside location; needs renovation.
Victorian stone terraced house with high ceilings and ornate cornicing
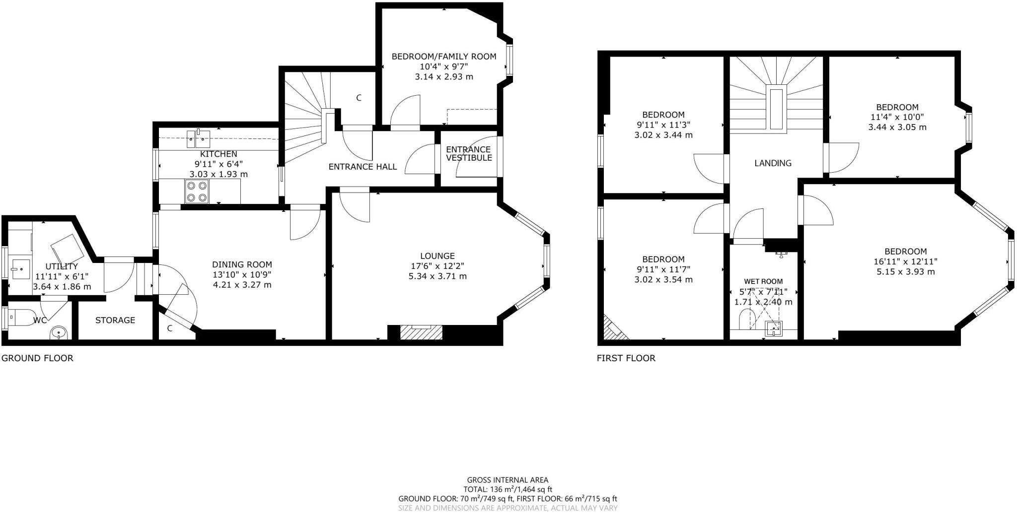
Set within the sought-after Morningside conservation area, this Victorian mid-terrace offers bright, characterful accommodation across two main storeys and a cellar. High ceilings, ornate cornicing and bay windows create generous principal rooms while a good-sized enclosed rear garden provides private outdoor space for family life. The location delivers easy access to local artisan shops, supermarkets, cafés, parks and strong transport links.
The house has clear potential as a comfortable family home: four upstairs bedrooms plus a ground-floor/fifth bedroom or family room, three public rooms and a practical utility area. Recent improvements include refurbished sash-and-case windows and a gas boiler installed around two years ago, reducing immediate major outlay. The cellar adds valuable storage and the layout suits reconfiguration or sympathetic updating to enhance period features.
Buyers should note the property requires renovation and modernisation throughout to realise its full value. There is only one wet-room style bathroom and a ground-floor WC, so families may wish to extend or rework plumbing arrangements. EPC band D and council tax described as quite expensive are factual considerations. Tenure is not specified in the information provided.
A closing date has been set, so interested viewers should act promptly. For a family seeking a handsome period house in a highly regarded south Edinburgh neighbourhood, this property represents a compelling refurbishment opportunity with strong location-led appeal.
4 bedroom terraced house for sale in 136 Craiglea Drive, Edinburgh, EH10 5PR, EH10 — £875,000 • 4 bed • 2 bath • 1991 ft²
4 bedroom terraced house for sale in Morningside Grove, Morningside, Edinburgh, EH10 — £825,000 • 4 bed • 2 bath • 2045 ft²
4 bedroom terraced house for sale in Comiston Drive, Morningside, Edinburgh, EH10 — £875,000 • 4 bed • 2 bath • 1945 ft²
3 bedroom terraced house for sale in Comiston Drive, Morningside, Edinburgh, EH10 — £895,000 • 3 bed • 2 bath • 1744 ft²
5 bedroom flat for sale in Greenhill Terrace, Greenhill, Edinburgh, EH10 — £760,000 • 5 bed • 2 bath • 2444 ft²
5 bedroom house for sale in Ormidale Terrace, Murrayfield, Edinburgh, EH12 — £850,000 • 5 bed • 2 bath • 2925 ft²


























































































































































