NW10 2UY - 3 bedroom apartment for sale in Denzil Road, Willesden, NW10

View on Property Piper

3 bedroom apartment for sale in Denzil Road, Willesden, NW10

Summary - 73 DENZIL ROAD LONDON NW10 2UY

3 bed 1 bath Apartment

**Standout Features:**
- Ground floor maisonette in a charming Victorian conversion
- Three spacious double bedrooms and a light-filled living room
- Private garden for exclusive use
- Share of freehold, providing greater ownership flexibility
- Excellent transport links nearby (Neasden, Dollis Hill Underground stations)
- Chain-free sale for a smooth purchasing process
- Proximity to family-friendly amenities and well-rated schools

**Property Overview:**
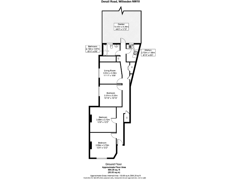
This purpose-built ground floor maisonette offers an impressive 894 sq. ft. of living space, featuring a bright reception room, a modern fitted kitchen, three comfortable double bedrooms, and a well-appointed bathroom. With a share of the freehold and sole use of a private garden, this home blends convenience and outdoor personal space—ideal for both families and young professionals. The property is located close to the vibrant amenities of Willesden and Neasden and boasts fast broadband speeds, excellent mobile signal, and easy access via the A406.

While the property presents an excellent opportunity, it's important to note the Victorian exterior may require some renovation. The walls are assumed to be solid brick with no insulation, which could be a consideration for future improvements.

It’s an excellent chance for first-time buyers or investors looking for a solid rental property in an evolving neighborhood. Don’t miss out on this rare opportunity; viewing is highly recommended as properties like this are in high demand.

Property Details

Image Descriptions

Floorplan Description

Rooms

Textual Property Features

Detected Visual Features

EPC Details

Nearby Schools

Nearest Bars And Restaurants

,,,,}

Nearest General Shops

,,}

Nearest Grocery shops

,,}

Nearest Supermarkets

,,}

Nearest Religious buildings

,,}

Nearest Medical buildings

,,,}

Nearest Airports

,}

Nearest Leisure Facilities

,,,,}

Nearest Tourist attractions

,,}

Nearest Train stations

,,,,}

Nearest Bus stations and stops

,,,,}

Nearest Hotels

,,}

Tags

Local Market Stats

AirBnB Data

Similar Properties

Meta

High Res Images

Compatible Images

Low res Images

Thumbnails

Raw Images

High Res Floorplan Images

Compatible Floorplan Images

Low res Floorplan Images

FloorplanImages Thumbnail

Raw Floorplan Images