End-terrace with gardens, off-street parking and strong transport links.
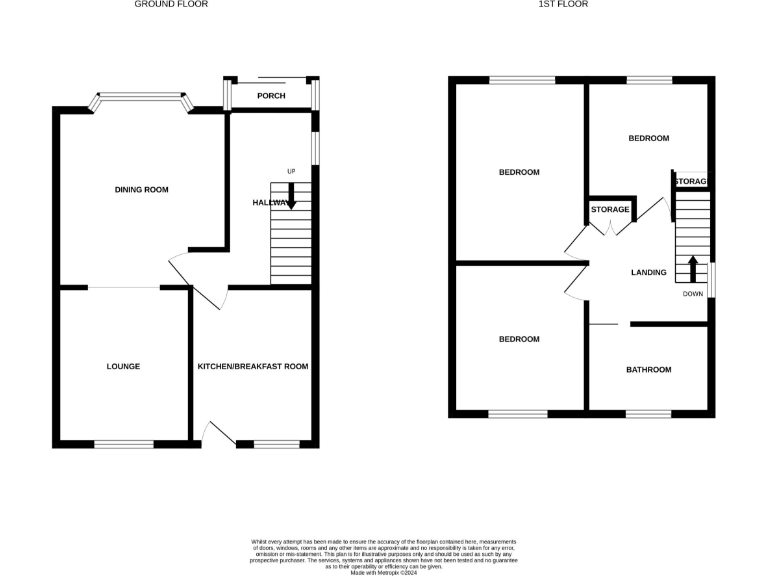
Three double bedrooms across two floors
A three-bedroom end-terrace offering practical family accommodation and immediate move-in potential. The ground floor has a through living/dining room and a fitted kitchen, while three double bedrooms and a family bathroom occupy the first floor. Outside there are front and rear gardens plus off-street parking.
This property suits first-time buyers or buyers seeking a starter family home in a well-connected area. Transport links are strong with regular bus routes and easy road connections into Liverpool and beyond. There is no onward chain which can help a faster completion.
Buyers should note the home needs updating in places; some rooms show dated mid-century finishes and modernisation will improve comfort and value. The tenure is leasehold — prospective purchasers must check lease length and charges before committing. The local area is classified as very deprived with mixed school performance nearby (several good primaries but some secondary ratings are weaker), so consider location factors alongside the property itself.
3 bedroom end of terrace house for sale in Stanton Close, Bootle, L30 — £120,000 • 3 bed • 2 bath • 1078 ft²
3 bedroom terraced house for sale in Ladysmith Road, Liverpool, L10 — £135,000 • 3 bed • 2 bath • 872 ft²
3 bedroom terraced house for sale in East Lancashire Road, Liverpool, Merseyside, L11 — £130,000 • 3 bed • 1 bath • 1170 ft²
3 bedroom end of terrace house for sale in East Lancashire Road, LIVERPOOL, Merseyside, L11 — £170,000 • 3 bed • 1 bath • 906 ft²
3 bedroom terraced house for sale in Abdale Road, Liverpool, Merseyside, L11 — £154,999 • 3 bed • 1 bath
3 bedroom terraced house for sale in Swallowhurst Crescent, Liverpool L11 2UX, L11 — £130,000 • 3 bed • 1 bath


















































