Roomy, characterful flat close to Kensington Gardens and Gloucester Road station.
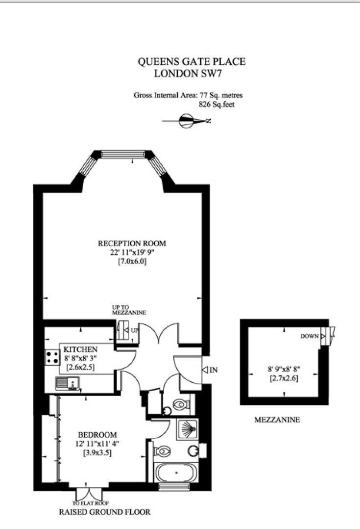
- Large reception with high ceilings and mezzanine offering versatile space
- Generous 826 sq ft — larger than typical one‑bedroom SW7 flats
- Separate kitchen, bedroom with ensuite and guest cloakroom
- Share of freehold in a Victorian mid‑terrace building
- Mains gas community heating; double glazing but install date unknown
- Solid brick walls likely need insulation upgrades to improve efficiency
- Ground‑floor position — easy access but limited private outdoor space
- Council tax level is quite expensive for residents
A bright, spacious one‑bedroom flat in a handsome period building moments from Gloucester Road station and Kensington Gardens. The large reception benefits from high ceilings and a mezzanine, creating flexible living space that feels much larger than a typical one‑bedroom apartment.
The layout works well for a first‑time buyer or couple: a separate kitchen, guest cloakroom, double‑fitted bedroom with an ensuite bathroom and generous reception mean comfortable, practical day‑to‑day living. At around 826 sq ft this flat is unusually large for SW7 and offers scope to personalise finishes to your taste.
Practical details to note: tenure is a share of freehold and the building is Victorian (circa 1900–1929) with solid brick walls. Heating is via a community mains‑gas scheme and glazing is double glazed though install date is unknown. Council tax is quite expensive and the building’s solid walls imply limited insulation unless upgraded.
This is a rare ground‑floor central London home that combines period character and contemporary living space. It suits buyers seeking a roomy, well‑located flat with future potential to improve energy performance and internal finishes.
1 bedroom apartment for sale in Queens Gate, London, SW7 — £900,000 • 1 bed • 1 bath • 668 ft²
1 bedroom apartment for sale in Queen's Gate Place, South Kensington, SW7 — £1,175,000 • 1 bed • 1 bath • 826 ft²
1 bedroom flat for sale in Queens Gate Place, London, SW7 — £500,000 • 1 bed • 1 bath • 753 ft²
1 bedroom flat for sale in Emperors Gate, South Kensington, SW7 — £750,000 • 1 bed • 1 bath • 678 ft²
1 bedroom apartment for sale in Queens Gate, London, South Kensington, SW7 — £900,000 • 1 bed • 2 bath • 668 ft²
1 bedroom flat for sale in Onslow Gardens, South Kensington, London, SW7 — £725,000 • 1 bed • 1 bath • 563 ft²






























































