Permitted eight-flat plot with fast broadband, ideal for hands-on developers..
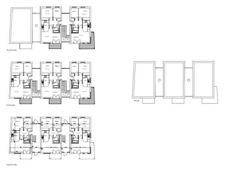
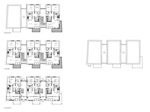
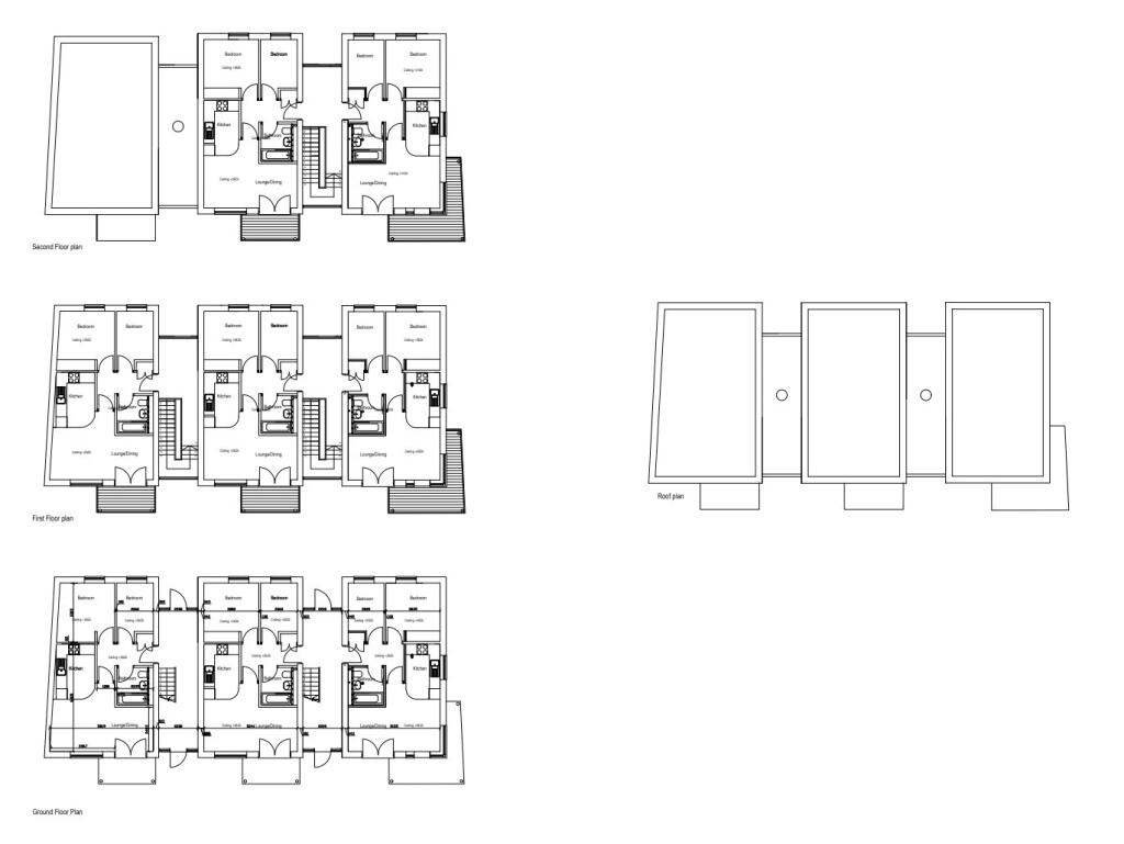
Planning permission approved for eight two‑bedroom flats (ref: 20/01426/FUL)
Freehold town-centre plot with decent overall footprint (4,240 sq ft)
Each apartment approx 530 sq ft (50 m2) as consented
Gigabit-capable broadband and excellent mobile signal on site
Close to several good and outstanding local schools and town amenities
Area classified as very deprived; recorded crime level: very high
Neighbourhood described as hampered; may affect rental/sales demand
Council tax banding unknown; factor in management and security costs
This freehold town-centre plot in Bilston is offered with approved planning permission (ref: 20/01426/FUL) for a three- and two-storey building comprising eight two‑bedroom apartments (each c.530 sq ft / 50 m2). The site sits adjacent to Bilston Post Office and close to the Black Country Route, giving direct access to local amenities, transport links and a dense urban catchment. Gigabit-capable broadband and excellent mobile signal support modern residential or lettings use.
The site is large with a decent plot footprint (total 4,240 sq ft) and a central location that benefits from proximity to several well-rated primary and secondary schools. The planning approval clears a major initial barrier to delivery, reducing early planning risk for a developer or investor able to build out the consented scheme.
Buyers should note material constraints: the local area is classified as very deprived with very high recorded crime and hampered neighbourhood indicators. These factors will influence rental levels, sales values and management costs; additional security and design measures may be advisable. Council tax position is unknown and any construction will need to consider viability against local market demand.
Overall this is a pragmatic development opportunity: a permitted, central-site scheme priced for repositioning in a challenging neighbourhood. It suits small developers or investors prepared to manage the locality risks and deliver compact, modern flats that target town-centre renters or first-time buyers.
Land for sale in Land At The Former Mill Public House, Beaconville Road, West Bromwich, B71 3NX, B71 — £580,000 • 1 bed • 1 bath
Land for sale in Dorsett Road Terrace, WEDNESBURY, WS10 — £110,000 • 1 bed • 1 bath
Land for sale in Willenhall, Walsall, WV12 — £260,000 • 1 bed • 1 bath • 1693 ft²
Mixed use property for sale in Westwood Road, Birmingham, B6 — £850,000 • 1 bed • 1 bath • 5277 ft²
Land for sale in Land off Ridding Lane &, Addison Street, Wednesbury, WS10 9AW, WS10 — £250,000 • 1 bed • 1 bath
Land for sale in 413 Newhampton Road West, Whitmore Reans, Wolverhampton, West Midlands, WV6 0RX, WV6 — £200,000 • 1 bed • 1 bath • 20473 ft²










