South-facing garden, private mooring and contemporary interiors for active families..
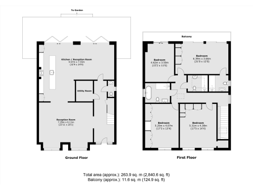
Four double bedrooms with generous open-plan ground floor living
South-facing garden, balcony and extensive paved terrace for entertaining
55ft private mooring providing direct river access and excellent views
Newly refurbished; underfloor heating, modern boiler and double glazing
High flood risk — ongoing mitigation and insurance likely required
Council Tax Band G — quite expensive to run
Built 1967–75 with cavity walls and internal insulation; consider upgrades
Freehold on a large riverside plot with strong outdoor potential
A newly refurbished four-double-bedroom detached house on Hythe End Road offering stylish open-plan living and direct Thames frontage. Large bi-fold doors and an extensive paved terrace create superb indoor–outdoor flow, while a south-facing garden and 55ft private mooring deliver rare riverside lifestyle and recreational value.
Finished to a contemporary standard with underfloor heating, modern boiler, and double glazing, the home suits families who prioritise light, entertaining space and outdoor living. The property sits on a generous plot with lawn, mature planting and a balcony overlooking uninterrupted river views across to tree-lined parkland.
Buyers should note material considerations: the location is in a high flood-risk area and regular flood mitigation and insurance will be necessary. Council Tax sits at the higher Band G level, and the house—constructed in the late 1960s/early 1970s—uses cavity walls with internal insulation, which may influence long-term maintenance or upgrade plans.
This is a lifestyle purchase for those seeking riverside living close to local schools and amenities; the freehold tenure, private mooring and recent refurbishment reduce immediate work required, while the plot and layout offer scope for further personalization.
6 bedroom detached house for sale in Riverwood, Hythe End Road, TW19 — £1,125,000 • 6 bed • 4 bath • 2466 ft²
4 bedroom detached house for sale in Hythe End Road, Wraysbury, TW19 — £950,000 • 4 bed • 4 bath • 2291 ft²
4 bedroom detached house for sale in Hythe End Road, Wraysbury, Staines-upon-Thames, TW19 — £700,000 • 4 bed • 2 bath • 1768 ft²
3 bedroom detached house for sale in Riverside home - Wraysbury, Berkshire, TW19 — £950,000 • 3 bed • 2 bath • 2561 ft²
4 bedroom detached house for sale in Hythe End Road, Wraysbury, Staines-upon-Thames, Berkshire, TW19 — £700,000 • 4 bed • 2 bath • 3175 ft²
5 bedroom detached house for sale in RIVERSIDE - Wraysbury, Berkshire, TW19 — £1,750,000 • 5 bed • 4 bath • 3340 ft²






































