Compact, contemporary flat with private outdoor space and quick links to Central London.
Bright open-plan lounge and modern kitchen with plenty of natural light
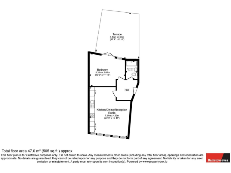
Bright and well-presented one-bedroom flat in Muswell Hill, set over 505 sq ft with a private terrace. The open-plan lounge and contemporary kitchen fill the apartment with natural light, creating an inviting living space for day-to-day life and entertaining. The double bedroom is a comfortable size and the modern bathroom is in good condition.
Positioned for easy commuting, the property sits within reasonable distance of several rail and Tube links offering fast journeys into central London. Local amenities are extensive — cafes, shops, healthcare and leisure facilities are all close by — and the area scores highly for broadband, mobile signal and safety.
Practical details: the property is leasehold with 119 years remaining and heated by a mains-gas boiler with radiators. There is no identified flood risk. Prospective buyers should confirm current service charges and ground rent, and check any communal maintenance responsibilities before purchase.
This flat suits a first-time buyer seeking a comfortable, low-maintenance London home with good transport connections and a private outdoor space, or an investor looking for a well-located one-bed unit with straightforward occupancy appeal.
1 bedroom flat for sale in Muswell Hill Broadway, London, N10 — £400,000 • 1 bed • 1 bath • 303 ft²
1 bedroom apartment for sale in Hillfield Park Mews, London, N10 — £525,000 • 1 bed • 1 bath • 700 ft²
2 bedroom flat for sale in Tetherdown, London, N10 — £515,000 • 2 bed • 1 bath • 675 ft²
1 bedroom flat for sale in Colney Hatch Lane, Muswell Hill, London, N10 — £425,000 • 1 bed • 1 bath • 547 ft²
1 bedroom flat for sale in Muswell Hill, London, N10 — £325,000 • 1 bed • 1 bath • 378 ft²
1 bedroom flat for sale in Muswell Hill, Muswell Hill, London, N10 — £450,000 • 1 bed • 1 bath • 500 ft²






























































