Spacious architect-designed four-bedroom home with large gardens and garage — chain-free.
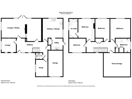
Architecturally designed executive detached house, approx 2,384 sq ft
Four double bedrooms, en-suite plus family bathroom
Four reception rooms — flexible living and home-office space
Very large private plot with patio, lawn and gated driveway
Garage with power and water; ample off-street parking
Boiler replaced 2024 (10-year guarantee); uPVC double glazing
Access to eaves — loft conversion potential (requires planning)
Council Tax Band G is quite expensive; tenure to be legally verified
An architecturally designed executive detached house on South Road offering generous, adaptable living over two floors. Four double bedrooms, an en-suite and a family bathroom sit above a ground floor with four reception rooms, a large kitchen/breakfast room, utility and cloakroom — ideal for growing families who need separate living and work spaces. The property is chain-free and benefits from recent practical upgrades, including a boiler fitted in 2024 with a 10-year guarantee and uPVC double glazing.
Set behind electronic double-opening gates on a very large plot, the house offers substantial off-road parking, a garage with power and water, and private, landscaped gardens with patio and lawn — a good balance of low-maintenance patio and family lawn. There is useful storage and potential: access to the eaves could allow loft conversion subject to the necessary planning application, adding future value and space.
Buyers should note a few material points: council tax is high (Band G), the wider area records high deprivation, and the shared hedge is trimmed annually with maintenance costs split between the three executive properties. Some items and measurements are presented for guidance only and must be independently verified (tenure, fixtures and fittings, and measurements). Overall, this is a spacious, well-presented family home with scope to add further value.
4 bedroom detached house for sale in South Road, Porthcawl, Bridgend County Borough, CF36 3DA, CF36 — £850,000 • 4 bed • 2 bath • 2289 ft²
4 bedroom semi-detached house for sale in Victoria Avenue, Porthcawl, CF36 3HA, CF36 — £565,000 • 4 bed • 2 bath • 1785 ft²
4 bedroom detached house for sale in Adrian Close, Porthcawl, South Glamorgan, Bridgend (County of), CF36 — £649,000 • 4 bed • 3 bath
5 bedroom semi-detached house for sale in Newton Nottage Road, Porthcawl, South Glamorgan, Bridgend (County of), CF36 — £379,950 • 5 bed • 2 bath
4 bedroom detached house for sale in The Shielings Carlton Place, Porthcawl, CF36 3ET, CF36 — £875,000 • 4 bed • 3 bath • 2616 ft²
4 bedroom detached house for sale in Stratford Drive, Porthcawl, CF36 — £500,000 • 4 bed • 2 bath • 2007 ft²


























































































































































