Income-producing, conversion upside in a busy market town location.
- Current income £26,000pa from two retail leases
- Prominent glazed high‑street frontage with strong footfall
- Rear access and off‑street parking for deliveries
- Upper floors over two levels with conversion potential (STPP)
- Grade II listed — restrictive for alterations and redevelopment
- No central heating system; electric heaters assumed
- Area shows higher crime and local deprivation indicators
- EPCs Band D for both retail units
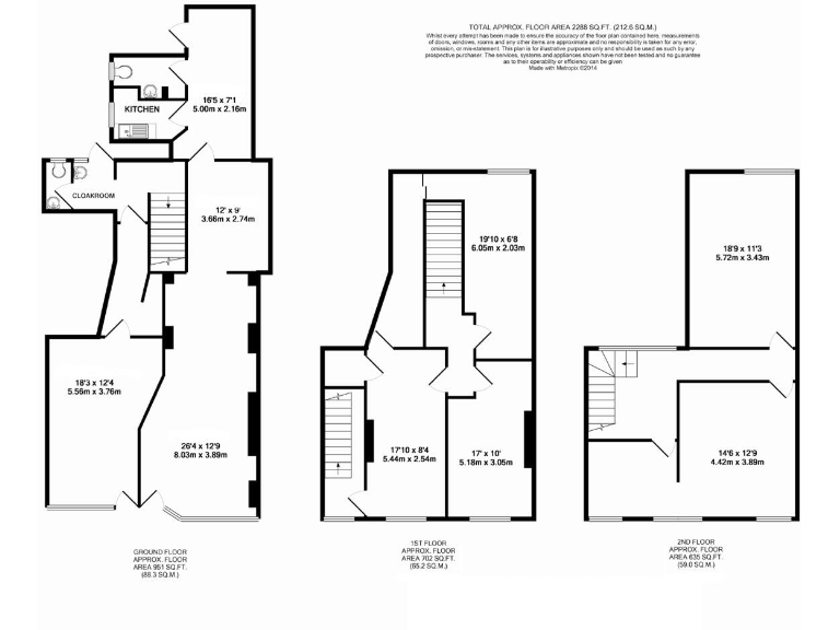
A rare freehold retail investment in the centre of Beccles, producing a current income of £26,000 per annum from two long-standing ground-floor tenants. The property occupies a prominent glazed high‑street frontage between national retailers, with rear parking and separate rear access potential for upper floors. EPCs are Band D for both units and mains services are connected; upper parts are arranged over two floors with scope for residential conversion subject to planning (STPP).
Important practical points: the building is Grade II listed which will restrict alterations and may complicate redevelopment or conversion. There is no central heating system currently; electric heaters are assumed. The property sits in an area with higher crime rates and wider local deprivation indicators, which should be considered alongside the town’s strong retail catchment and market-day footfall.
This asset suits an investor seeking income with upside from rental growth or a sympathetic conversion project where listing constraints are accepted. Offers are invited in excess of £400,000 for the freehold; purchaser due diligence should confirm tenure details, planning constraints and the condition of the services and fabric before exchange.
High street retail property for sale in Newmarket Street, Beccles, NR34 — £200,000 • 1 bed • 1 bath • 1405 ft²
High street retail property for sale in 5 Blyburgate, Beccles, Suffolk, NR34 — £250,000 • 1 bed • 1 bath • 770 ft²
High street retail property for sale in NEW PRICE > Investment in Beccles, Suffolk, NR34 — £499,950 • 3 bed • 1 bath • 1658 ft²
Commercial development for sale in Hungate, Beccles, Suffolk, NR34 — £295,000 • 1 bed • 1 bath • 3500 ft²
High street retail property for sale in Bevan Street East, Lowestoft, NR32 — £87,500 • 1 bed • 1 bath • 1224 ft²
3 bedroom house for sale in NEW PRICE > Investment in Beccles, Suffolk, NR34 — £499,950 • 3 bed • 1 bath • 1368 ft²


































































































