Single-floor living with south garden and garage, ideal for downsizers.
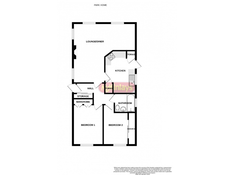
36' x 20' park home — unusually large internal space
This spacious single-storey park home offers practical, low-maintenance living for over-50s who want a large, bright retreat on the edge of Ilminster. The 36' x 20' Manor Oakliegh layout provides a dual-aspect lounge-diner, fitted kitchen, and two double bedrooms with built-in wardrobes — all double glazed and heated by mains-fired gas central heating. A private, fully enclosed south-facing garden, garage with power and light, and adjoining driveway add useful outdoor and storage space.
The plot is unusually large for a park home and the property is offered with vacant possession, making it straightforward to move in. Pets are permitted and the home is sold under the 2013 Park Homes Act, which gives some protections for buyer rights. Council tax is band B and ground rent is £169.88 pcm.
Important practical points: this is a park home on a site where a 10% return to the site is payable on re-sale. The property was built in 1994 and buyers should be aware of the high local flooding risk — obtain specific flood and insurance advice before committing. The accommodation is described for guidance only; services, fittings and exact measurements should be independently checked.
Overall this home will suit downsizers or retirees seeking single-floor living with outdoor space, garage parking and a generous internal layout, provided they are comfortable with park-home ownership terms and the noted flood risk.
2 bedroom park home for sale in Ilminster, TA19 — £110,000 • 2 bed • 1 bath • 720 ft²
1 bedroom park home for sale in Ilminster, TA19 — £65,000 • 1 bed • 1 bath • 360 ft²
2 bedroom park home for sale in Bathpool, TA2 — £170,000 • 2 bed • 1 bath • 724 ft²
2 bedroom park home for sale in Hendlade, TA3 — £120,000 • 2 bed • 1 bath • 625 ft²
2 bedroom bungalow for sale in Broughton Park, Shoreditch, Taunton, TA3 — £70,000 • 2 bed • 1 bath • 660 ft²
2 bedroom park home for sale in Taunton, Somerset, TA3 — £195,000 • 2 bed • 2 bath • 760 ft²






















































