Grade II listed Cotswold estate with thatched barn and almost four acres.
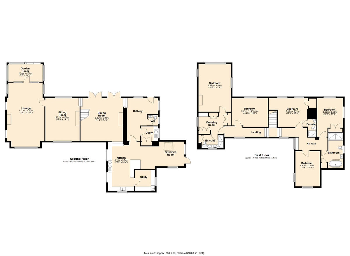
Six bedrooms and four bathrooms across large period family house
Brook House is a substantial Grade II listed Cotswold residence set within almost four acres of gardens, paddock, orchard and woodland. The principal house combines stone and timber-framing with mullioned windows, exposed beams and a large glazed extension, offering flexible living across multiple reception rooms and bedrooms. A detached thatched barn and several outbuildings provide versatile ancillary space for a home office, studio, stables or storage.
The estate’s elevated position and mature tree belts create a private, rural outlook while remaining close to village amenities and good schools — attractive for families seeking country lifestyle and equestrian potential. The plot includes formal terraces and lawns close to the house with wider paddocks and woodland beyond, providing scope for gardens, grazing or small-scale hobby farming.
Buyers should note this is a Grade II listed property: listed status will restrict alterations and likely increase maintenance and consent requirements. The thatched barn and older fabric will require specialist upkeep. There is a recorded restrictive covenant on part of the woodland, an established public footpath along the eastern boundary (fenced), occasional utility access across the brook, and a medium flood risk for parts of the grounds. EPC is exempt due to listing; council tax is high. The property is offered with vacant possession and freehold title.
8 bedroom detached house for sale in Walwyn Road, Colwall, Malvern, Herefordshire, WR13 — £1,250,000 • 8 bed • 7 bath • 5066 ft²
6 bedroom detached house for sale in Stourton, Warwickshire, CV36 — £1,795,000 • 6 bed • 4 bath • 3147 ft²
4 bedroom detached house for sale in Barton-on-the-Heath, Moreton-in-Marsh, Gloucestershire, GL56 — £2,500,000 • 4 bed • 2 bath • 3657 ft²
5 bedroom detached house for sale in The Common, Woolaston, Lydney, GL15 — £1,100,000 • 5 bed • 3 bath • 3479 ft²
4 bedroom semi-detached house for sale in Brook Lane, Down Hatherley, Gloucester, GL2 — £425,000 • 4 bed • 2 bath • 1105 ft²
6 bedroom detached house for sale in Upton Lane, Brookthorpe, Gloucester, GL4 — £1,100,000 • 6 bed • 4 bath • 5000 ft²


































































































































































































