W7 3QD - 3 bedroom terraced house for sale in Deans Road, Hanwell, W7

View on Property Piper

3 bedroom terraced house for sale in Deans Road, Hanwell, W7

Summary - Deans Road, W7 W7 3QD

3 bed 1 bath Terraced

Renovated three-bedroom terrace near Hanwell Station and top local schools.
Three double bedrooms with open-plan kitchen/living space
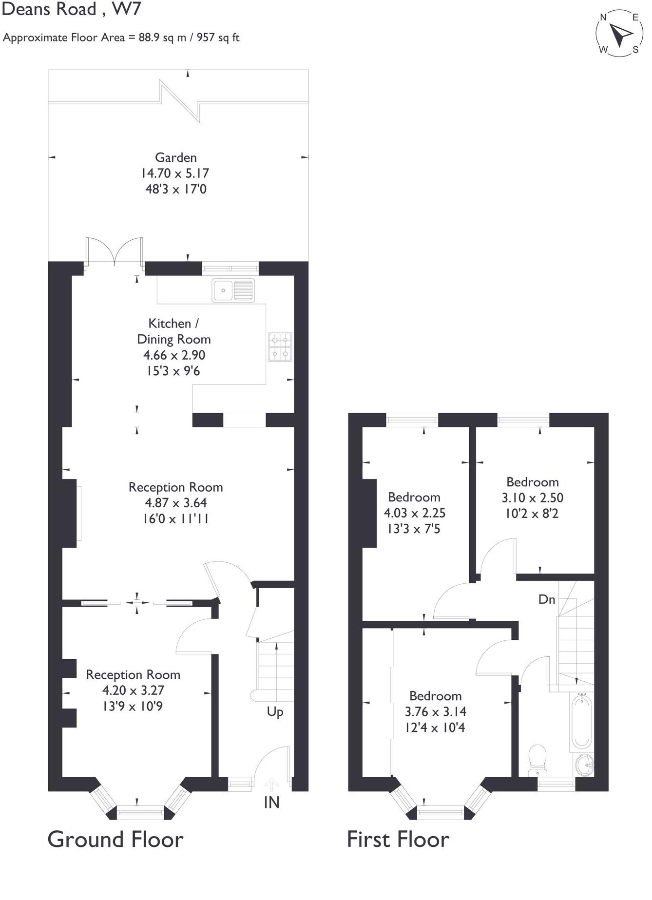
Recently renovated mid-terrace Victorian house offering three double bedrooms and an open-plan kitchen/living area. The property benefits from double glazing, modern boiler and easy access to Hanwell Station (Elizabeth Line), making it a practical choice for commuters and growing families.

The rear private garden is well maintained but the plot is small; there is scope to add value by extending into the loft (STPP). Accommodation is well laid out for family life, with generous reception space and a single family bathroom serving three bedrooms.

Important considerations: the area records very high crime levels and the house has solid brick walls assumed to lack cavity insulation, so further insulation work may be advisable. The EPC is rated D. Overall this is a renovated, commuter-friendly family home with clear potential to increase space and value if planning is approved.

Property Details

Brochure Descriptions

Image Descriptions

Floorplan Description

Rooms

Textual Property Features

Target Audience

AI Tags

Detected Visual Features

EPC Details

Nearby Schools

Nearest Bars And Restaurants

,,,,}

Nearest General Shops

,,}

Nearest Grocery shops

,,}

Nearest Supermarkets

,,}

Nearest Religious buildings

,,}

Nearest Medical buildings

,,,}

Nearest Airports

,}

Nearest Leisure Facilities

,,,,}

Nearest Tourist attractions

,,}

Nearest Train stations

,,,,}

Nearest Bus stations and stops

,,,,}

Nearest Hotels

,,}

Tags

Local Market Stats

AirBnB Data

Similar Properties

Meta

High Res Images

Compatible Images

Low res Images

Thumbnails

Raw Images

High Res Floorplan Images

Compatible Floorplan Images

Low res Floorplan Images

FloorplanImages Thumbnail

Raw Floorplan Images