Ready-to-live modern flat with private parking and strong commuter links.
- Two double bedrooms; principal bedroom with en-suite
- Bright reception with large windows and open-plan kitchen
- Private off-street parking included
- Electric underfloor heating; double glazing installed
- Leasehold: 128 years remaining
- Service charge ~£2,000/year; ground rent £200/year
- Council tax above average; area classed very deprived
- Local crime level: very high
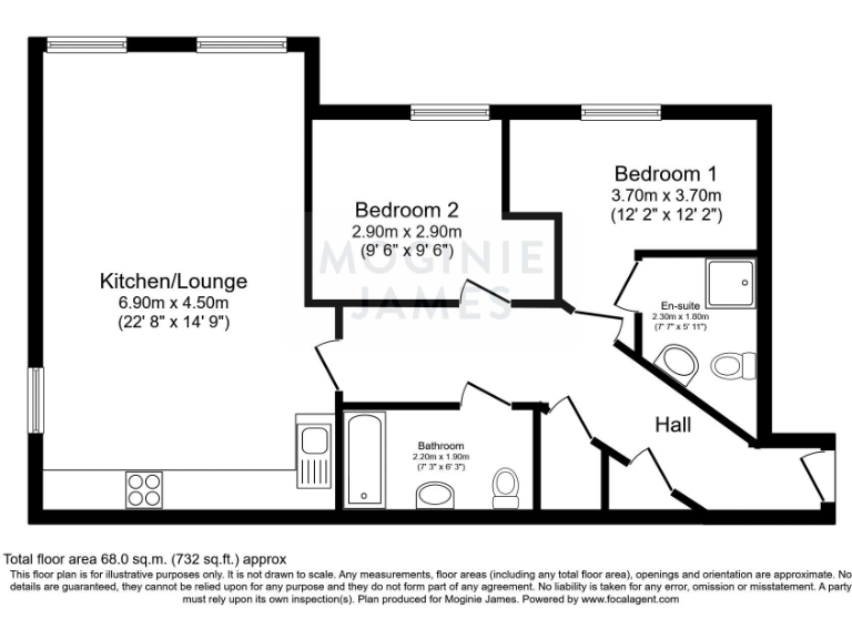
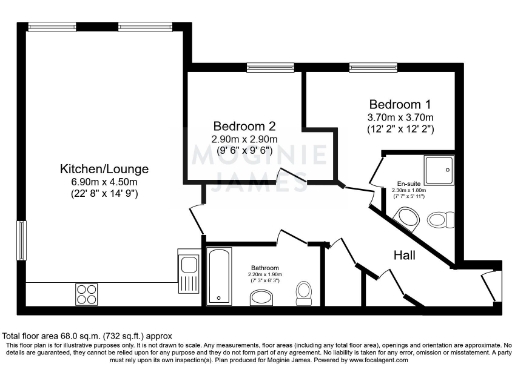
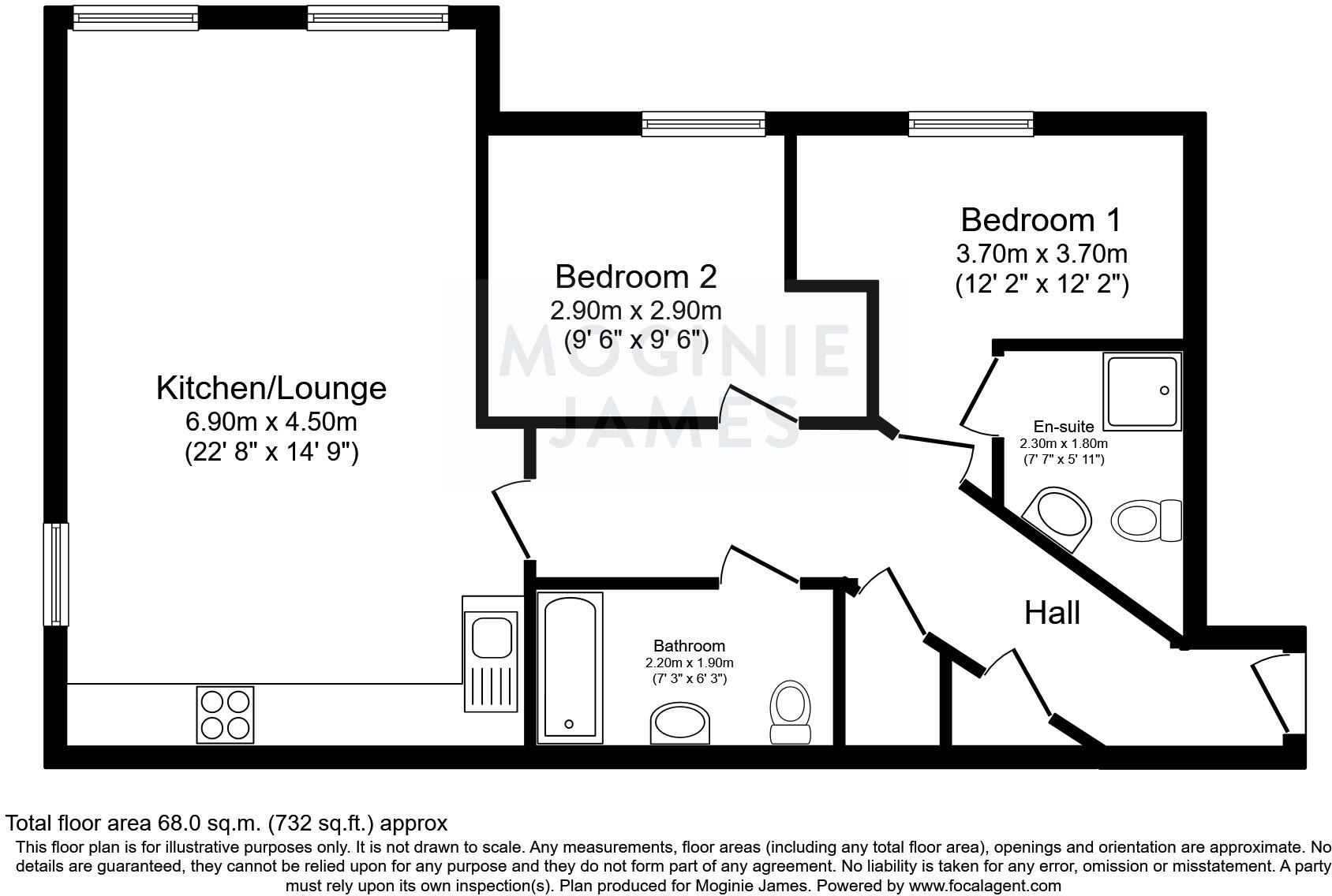
This modern two-bedroom apartment in CF10 offers a bright, practical home or a straightforward rental opportunity. A spacious reception with large windows and an open-plan kitchen creates a light, usable living space suited to everyday life and socialising.
Both bedrooms are doubles and the principal bedroom includes an en-suite, while a second contemporary bathroom serves guests or housemates. The flat benefits from private off-street parking, double glazing and electric underfloor heating—features that add convenience and tenant appeal.
Important practical facts: the property is leasehold with 128 years remaining, an average-sized 732 sq ft layout and an annual service charge of around £2,000 plus a £200 ground rent. Council tax is above average. The building dates from 2007 or later.
Location strengths include excellent public transport, fast broadband and strong mobile signal, plus nearby shops, cafes and walking/cycling routes. Be aware the local area is classified as a cosmopolitan, multicultural student neighbourhood with very high crime and high deprivation levels—factors that may affect family buyers’ perceptions and rental premiums.
Overall this apartment suits first-time buyers seeking a ready-to-live-in home or investors targeting student or commuter lets. The flat presents low immediate maintenance needs but buyers should budget for the ongoing service charge and factor area characteristics into long-term plans.
2 bedroom apartment for sale in Lock Keepers Court, Blackweir Terrace, Cardiff, CF10 — £165,000 • 2 bed • 2 bath • 657 ft²
2 bedroom apartment for sale in Bishop Hannon Drive, Cardiff, CF5 — £115,000 • 2 bed • 1 bath • 411 ft²
2 bedroom apartment for sale in Blackweir Terrace, Cardiff, CF10 — £175,000 • 2 bed • 2 bath • 1515 ft²
2 bedroom apartment for sale in Ferry Court, Cardiff, CF11 — £195,000 • 2 bed • 1 bath • 732 ft²
2 bedroom flat for sale in Messina House, Vellacott Close, Cardiff, CF10 — £180,000 • 2 bed • 2 bath • 752 ft²
2 bedroom flat for sale in Altolusso, Cardiff, CF10 — £180,000 • 2 bed • 2 bath • 808 ft²


































