SK17 6TL - 2 bedroom flat for sale in St Johns Road, Buxton, SK17

View on Property Piper

2 bedroom flat for sale in St Johns Road, Buxton, SK17

Summary - GARMONDSWAY APARTMENT 9 ST JOHNS ROAD BUXTON SK17 6TL

2 bed 2 bath Flat

**Standout Features:**
- Spacious two-bedroom, two-bathroom second-floor apartment
- Generous lounge/dining room with abundant natural light
- Master bedroom with en-suite shower room
- Off-road parking for two vehicles
- Communal gardens with seating areas
- No onward chain, offering move-in readiness

**Potential Concerns:**
- Above average crime rate in the local area
- Broadband speeds are slower than average
- Service charge of £1,300 annually

Discover this exceptionally spacious two-bedroom, two-bathroom apartment located in a sought-after development, just a short stroll from the scenic Pavilion Gardens, Buxton Opera House, and the vibrant Town Centre. The well-designed layout incorporates a stunning lounge/dining area that serves as a perfect gathering spot for family and friends. The fitted kitchen, while compact and traditional, offers ample storage and functionality for culinary endeavors. Each of the generous bedrooms features charming double-glazed windows; the master suite boasts an en-suite for added privacy.

Benefiting from off-road parking and well-maintained communal gardens, this property embodies comfort and convenience, making it ideal for first-time buyers or small families seeking a manageable space. The property is chain-free, allowing for a hassle-free transaction. However, be aware of the area's above-average crime rate and slower broadband speeds, which might impact your lifestyle. This enticing opportunity won't last long—schedule your viewing today to fully appreciate the comfort and potential of your new home!

Property Details

Brochure Descriptions

Image Descriptions

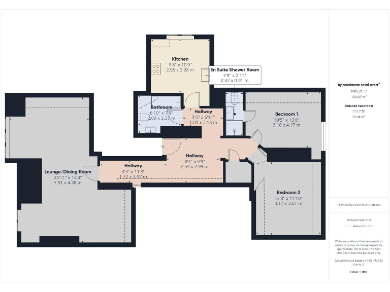
Floorplan Description

Rooms

Textual Property Features

Detected Visual Features

EPC Details

Nearby Schools

Nearest Bars And Restaurants

,,,,}

Nearest General Shops

,,}

Nearest Grocery shops

,,}

Nearest Supermarkets

,,}

Nearest Religious buildings

,,}

Nearest Medical buildings

,,,}

Nearest Airports

}

Nearest Leisure Facilities

,,,,}

Nearest Tourist attractions

,,}

Nearest Train stations

,,,,}

Nearest Bus stations and stops

,,,,}

Nearest Hotels

,,}

Tags

Local Market Stats

AirBnB Data

Similar Properties

Meta

High Res Images

Compatible Images

Low res Images

Thumbnails

Raw Images

High Res Floorplan Images

Compatible Floorplan Images

Low res Floorplan Images

FloorplanImages Thumbnail

Raw Floorplan Images