Stylish two-bedroom flat moments from shops, station and riverside amenities.
Victorian apartment with high ceilings and original period details
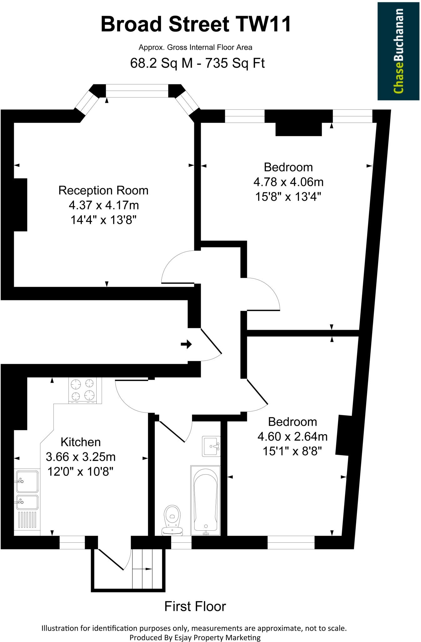
Two double bedrooms and a large reception room with bay window
Modern fitted kitchen and contemporary family bathroom
Private balcony off the kitchen for outdoor space
Leasehold with ~98 years remaining; ground rent £200 pa
Situated above retail unit on busy Broad Street — daytime noise likely
Solid brick construction; limited external wall insulation assumed
Local crime levels above average — consider security measures
Set in the heart of Teddington, this newly refurbished two-bedroom Victorian apartment pairs original period features with a stylish modern kitchen and private balcony. High ceilings, tall sash-style windows and fireplaces give the reception and bedrooms generous proportions and abundant natural light. The eat-in kitchen opens onto a balcony, ideal for coffee or evening relaxation in a central town-centre location.
Practical running costs are modest and the lease has around 98 years remaining; annual ground rent is £200. The property sits above a ground-floor commercial unit on Broad Street, offering excellent local amenities, excellent public transport links (Teddington Station nearby) and strong rental demand for investors or convenient commuting for buyers.
Buyers should note a few material points: the property is leasehold, the street is a busy high-street location so daytime noise and footfall are likely, and the building’s solid brick construction means external wall insulation may be limited. Local crime statistics are above average for the area, so viewings should consider security and personal comfort in a busy urban setting.
This apartment will suit those seeking period character and low-maintenance living close to shops, cafés and top-rated schools. It also offers clear potential for buy-to-let interest or an owner-occupier wanting a central base with good transport links and stylish, ready-to-live-in accommodation.
2 bedroom apartment for sale in Broad Street, Teddington, TW11 — £429,950 • 2 bed • 2 bath • 950 ft²
1 bedroom flat for sale in Broad Street, Teddington, TW11 — £250,000 • 1 bed • 1 bath • 355 ft²
2 bedroom apartment for sale in High Street, Teddington, TW11 — £575,000 • 2 bed • 1 bath • 915 ft²
2 bedroom apartment for sale in Church Road, Teddington, TW11 — £600,000 • 2 bed • 2 bath • 901 ft²
1 bedroom apartment for sale in Elfin Grove, London, TW11 — £475,000 • 1 bed • 1 bath • 542 ft²
2 bedroom apartment for sale in High Street, Teddington, TW11 — £495,000 • 2 bed • 2 bath • 824 ft²














































